Внешняя отделка
Оформление важно не только внутри, но и снаружи здания. Для этого можно использовать различные материалы, методы и архитектурные решения
Причем декоративные элементы не только украсят дом, но и могут выполнять теплозащитные функции.
Материалы
Для внешней отделки применяют вагонку, натуральный или искусственный камень, штукатурку. Часто присутствуют элементы из кирпича или резные деревянные детали.
Среди современных материалов можно выделить термопанели, которые стали особо популярны в последнее время.
Необходимо помнить, что выбор фасадного материала зависит от того, из чего построено само здание. Облицовка для деревянного и каменного строения будет отличаться.
- Камень. По надежности и эксплуатационному сроку не имеет конкурентов. Однако высокая стоимость вынуждает владельцев комбинировать его с другими отделочными материалами. В последнее время востребовано оформление декоративным камнем, поскольку это менее затратно.
- Облицовочный кирпич. Этот вид отделки также зависит от типа. Выделяют клинкерный, керамический и силикатный кирпич. У каждого свой внешний вид, эксплуатационные качества, текстура и оттенок.
Окрашивание фасадов
Если фасад подразумевает покраску стен, то финальным этапом будет их окрашивание. Для этого необходимо соблюдать технологические нормы.
Профессионалы используют разные варианты покраски фасадов:
- с помощью малярного распылителя;
- пульверизатором;
- специальной промышленной машиной для наружных работ;
- малярной широкой кистью или валиком.
Архитектурные решения
При классическом стиле оформления дома следует учитывать, что этому направлению соответствует простота и утонченность деталей. Статус можно подчеркнуть массивными перилами, колоннами, арками, чугунными литыми элементами.
Деревенская стилистика позволяет использовать в оформлении высокое деревянное крыльцо, резные наличники, ставни, козырьки на сваях перед входной дверью, встроенные в крыши окна.
При скандинавском решении снаружи подразумеваются дорожки, выложенные камнем, альпийские горки.
Итальянскому домику характерно наличие мансарды или эркеры.
Каким должен быть красивый частный дом
Конечно же, представление о красоте у каждого свое
Вместе с тем, чтобы жилище действительно было привлекательным, важно ориентироваться на такие критерии:
Комфорт. Эта составляющая очень важна, ведь даже стильное, роскошное и ультрасовременное жилище, лишенное уюта, может омрачить общее впечатление о доме.
Свобода пространства. И речь идет не только о размере постройки или участка. Грамотный подход позволит даже дом небольшой площадью сделать привлекательным и уютным.
Гармоничность
Важно, чтобы она прослеживалась во всем. Для достижения баланса следует продумать стиль и цветовую гамму, а также организовать пространство, гармонично разместив здесь все элементы.
Индивидуальность
Нередко можно встретить дома, которые сложно отличить друг от друга. Чтобы ваш дом не стал одним из них, при его обустройстве необходимо внести нотки уникальности.
Как правильно распланировать придомовую территорию
Перед тем, как начинать работы по планировке двора частного дома, стоит вспомнить, что он бывает передним и задним. Участок между фасадом и ограждением требует особо щепетильного оформления – он открыт для чужих взоров и является лицом владельцев.
Территория за жилой постройкой спрятана от посторонних глаз. Тут принято устраивать зону релаксации и размещать подсобные сооружения.
На выбор планировочного решения двора оказывает влияние его размеры и пожелания хозяев. Однако есть общие правила обустройства, которым следуют многие собственники.
Пространство перед входом в дом не рекомендуется заполнять растениями. Лучше оставить его свободным, чтобы упростить передвижение. Если двор большой, то по обеим сторонам от входной группы допускается разбить по клумбе. Непосредственно перед крыльцом стоит выложить дорожное покрытие.
Выбор планировочного решения – один из важнейших этапов строительства дома. Этот момент сопровождается определёнными трудностями. Вначале нужно подобрать подходящий участок земли, разработать и согласовать проект.
Потом следует пройтись по различным инстанциям и получить необходимые разрешения. И лишь затем можно начинать строительные работы. Однако конечный результат с лихвой окупит все усилия, ведь своё жильё – это чудесно.
Как расположить окна
К планировке окон в частном доме нужно отнестись крайне ответственно. Оконные проёмы следует располагать по сторонам света для каждого помещения с учётом его архитектурных особенностей. Если есть такая возможность, то жилые комнаты должны быть обращены на юг. Однако допустимо и их юго-западное расположение.

Окна на северном фасаде рекомендуется сделать меньшего размера. Эту часть здания лучше отдать под те подсобные помещения, которые не нуждаются в хорошем естественном освещении.

Площадь остекления в жилых комнатах должна быть в 5,5 – 8 раз меньше площади пола. Если вблизи коттеджа имеются другие постройки или высокие кусты, разрешается увеличение размера оконных проёмов. Что касается высоты установки, она зависит от типа помещения. Спальня требует 0,7 – 1 м, кухня – 1,25 м, санузлы – 1,3 м.

Планировка небольших домов, которые мы любим
Доступные и простые в строительстве планировка небольших домов не тратит впустую места, но дает удобные жилые помещения. Современному фермерскому дому придает стильную привлекательность бордюр с обшивкой из досок и обрешеткой и уютным крыльцом.
Гараж на две машины предлагает дополнительное место для хранения при необходимости. Скромные квадратные метры и небольшая планировка делают его доступным для строительства.
В каждой спальне есть гардеробная! Благодаря открытой планировке все выглядит современным, с островной кухней с видом на большую комнату. В главной спальне есть гардеробная, двойная раковина и просторный душ. Не пропустите прохладную террасу на втором уровне.
Проектирование помещения
Дизайнеры советуют перед выбором типового проекта подумать и оценить его комфортность для повседневного использования.
Проектирование помещения начинается с определения площади дома и его этажности. Для этого нужно знать, сколько человек будет в нем проживать. Затем осуществляют подбор внутренней планировки.
Эскизный проект с раскладкой должен включать архитектурную, конструкторскую и инженерную информацию, описывающую все технико-экономические показатели, расположение коммуникационных сетей, сигнализации, межкомнатных перегородок, лестниц, окон, каминов, балконов, мансард и прочих деталей в разрезе каждого этажа.

Санузлы и ванные комнаты в одноэтажных домах располагаются рядом, в двухэтажных – друг под другом. Как правило, кухонные помещения должны быть смежными с санузлами, что позволит сэкономить на сооружении коммуникаций и вентиляции.
Выбирая форму и настил крыши, необходимо помнить, что сложные конструкции дороги не только при строительстве, но и при дальнейшей эксплуатации.
При проектировании лучше заранее решить, что лучше: второй этаж или мансарда. Второй вариант менее затратный, однако, по количеству полезной площади он проигрывает полноценному этажу.


Стеновые конструкции
Пространство любого дома состоит из отдельных функциональных зон, для создания которых необходимы межкомнатные перегородки. Они обязательно присутствуют в проекте и возводятся одновременно с несущими стенами.
Основными материалами для их строительства являются кирпич и деревянный брус. В последнее время кирпичные перегородки стали заменять гипсовыми, поскольку они легче. Можно выделить другие современные материалы: газосиликатные блоки, пенобетон, керамзитобетон.
Что касается мобильных перегородок, которые легко собираются и разбираются, то тут стоит отметить каркасные профили. Они могут иметь стальную или деревянную основу, на которую в качестве облицовки крепят гипсокартон или фанеру. В данном случае используют различные виды утеплителей: минеральную вату, пенопласт, опилки.
Для увеличения количества солнечного света внутри помещений дизайнеры часто предлагают устанавливать стеклянные стены из поликарбоната. Они безопасны, просты в сборке и уходе.


Лестница
Если в проекте предусмотрена лестница, то ее удобство должно быть неоспоримо. Специалисты рекомендуют при высоте потолка в 3 метра оставлять для ее строительства площадь в пределах 8 кв. м. По мнению многих владельцев, винтовые модели не совсем удобны.
Камин
Наличие камина накладывает определенные требования по его местоположению и функциональности. Если планируется сооружение с открытым огнем, то нужно иметь в виду, что размеры комнаты должны быть достаточно большими. Существует несколько видов каминных конструкций.

Предъявляемые требования:
- пол возле такого камина обязательно должен быть обработан негорючими материалами;
- в целях пожарной безопасности проверку тяги нужно проверять регулярно;
- в непосредственной близости нельзя располагать мебель.

- Газовый камин имеет большую степень теплоотдачи, чем конструкция на угле или дровах. Он безопаснее при эксплуатации, не требует затрат на заготовку дров. Однако для его установки требуются специальные разрешения.
- Электрическая каминная система. Ее установка возможна только при наличии современной качественной электропроводки. В данном случае очаг искусственный, что делает камин безопасным. Конструкция характеризуется максимальной теплоотдачей и легкостью в управлении.
- Биокамин. Поскольку топливом служит биоэтанол, то отсутствует копоть и дым. Популярность обусловлена разнообразием форм и дизайна. Камины могут быть встроенные, напольные, отдельно стоящие, настольные.
Особенности планировки коттеджа
Закладка функционала будущего коттеджа происходит на этапе его проектирования
Поэтому важно заранее определиться с назначением здания, количеством жильцов, архитектурным стилем, отделочными материалами, необходимыми функциональными зонами

Проекты планировки частных домов должны отображать расположение несущих стен, ограждающих конструкций, перегородок, а ещё:
- общую площадь;
- позицию относительно сторон света;
- число этажей;
- используемые строительные материалы;
- размеры каждого помещения;
- схему укладки инженерных коммуникаций.

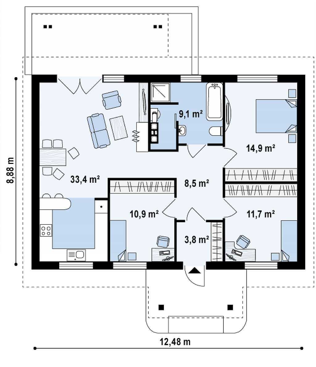
Как видно на фото планировки частного дома, стандартный вариант предусматривает выделение спальни каждому домочадцу, просторную гостиную и большую кухню. Нередко в план включают гараж, холл, библиотеку или кабинет, гостевые комнаты. Помимо этого, обязательно прописывают гардеробные, кладовые, ванные, туалеты.

Если у вас возникли какие-либо сложности, то не поленитесь проконсультироваться у специалистов. Они с радостью ответят на все ваши вопросы и помогут развеять любые сомнения. А можно сразу доверить планировку профессионалам и лишь отслеживать их работу.












Дом с мансардой
Планировка дома с мансардой – самый популярный выбор большинства инвесторов, решивших построить дом в России.
Планы таких домов популярны по экономическим причинам – они лучше всего подходят для реализации, не требуют такого большого участка, как бунгало, и при этом имеют человеческий масштаб, чем исторические дома – благодаря карнизу, спускающемуся под крышу.
Дома с чердаками меньше защищают сад, что на небольшом участке может иметь большое значение. И, наконец, большинство положений в планах муниципальных образований предусматривают особняки, дома с мансардой, с относительно острым углом наклона крыши.
В нашем предложении вы найдете как дома с двускатной крышей, так и с шатровой крышей, с мансардными окнами. Дома с мансардой с традиционной архитектурой и современной планировкой. Приглашаем ознакомиться с нашим предложением.
Красивый частный дом своими руками
Даже, если для выполнения всех работ вы выбрали квалифицированную бригаду профессионалов, вам предстоит самостоятельно определиться со стилем, дизайном, вариантом отделки и другими не менее важными вопросами.
Красивый фасад – визитная карточка дома
Первое впечатление о любом здании формируется именно исходя из взгляда на его фасад
Поэтому ему рекомендуют уделять особое внимание. Существует огромное количество материалов, которые используют для отделки фасадов:
Дерево. Этот природный материал отличается прекрасными теплоизоляционными свойствами, экологичностью и способностью вписываться во многие стили оформления загородного жилища. Однако выбрав древесину, нужно быть готовым к постоянному уходу за ней. Периодически вам придется обрабатывать материал от грибка, плесени и насекомых.
Камень. Натуральный и искусственный материал, используемый для отделки, выглядит дорого и презентабельно. Служит он очень долго, но требует профессионального подхода и значительных капиталовложений. Среди строителей более популярным является искусственный камень, который выглядит не хуже натурального, зато весит намного меньше и с ним легче работать.
Стекло и бетон. Комбинацию этих материалов нередко можно увидеть в оформлении дома в современном стиле. Большие панорамные окна дают возможность наслаждаться окружающей природой, пропускают в помещение много света и при этом смотрятся стильно
Выбирая стекла, нужно обращать внимание на их противоударные, теплоизоляционные и энергосберегающие свойства. Бетон для отделки здания выбирают поклонники урбанистического стиля
Клинкерный кирпич. Данный износостойкий и экологичный материал с отличными звукоизоляционными свойствами станет прекрасной альтернативой обычному кирпичу. При этом он на порядок дешевле. Благодаря большому выбору форм и цвета клинкерного кирпича, появляется отличная возможность проявить фантазию при отделке дома.
Декоративная штукатурка. Данный материал считается максимально доступным. Его легко наносить, а благодаря широкой цветовой палитре, перекрашивать такой дом можно будет неограниченное количество раз. Среди недостатков штукатурки, отмечают недолговечность такого покрытия, так как материал сильно подвержен воздействию солнца, мороза и влаги.
Двухэтажный план дома
Типичный дизайн дома в долгой истории строительства дома – это популярный и актуальный двухэтажный план дома. Планировка двухэтажного дома может включать широкий спектр архитектурных стилей.
Сопровождается различными ценовыми категориями, чтобы соответствовать разнообразным вкусам, индивидуальности и семейным требованиям наших клиентов. В условиях постоянно растущей потребности разделить работу, отдых, двухэтажный дом предлагает много места для гибкой семейной жизни в теплой, уютной обстановке, специально разработанной для отдельных семей.
Драматическая и величественная высота потолков и комнат, формальные и / или непринужденные жилые помещения, экстравагантный или практичный дизайн комнат, а также добавление многофункциональных и дополнительных зон в двухэтажных домах столь же разнообразны, как и люди, которые их занимают.
Это творческое полотно позволяет домовладельцам практически индивидуально оформить свое пространство в доме своей мечты; часто, не жертвуя приватностью или пространством.
Многоэтажные дома предлагают уровни жизни, которых нет в других типах домов, с особым очерченным пространством для развлечений, сна и доступностью пристроенного открытого пространства для детей.
Как самостоятельно сделать планировку дома?
Планировка дома с размерами осуществима на бесплатных платформах по созданию дома в Интернет. После этого можно сделать снимок и отдать застройщику, чтобы было понятно, что требуется от него.













Различия между домами связаны не только с используемый материал, материала, качества обработки, изоляции и связи. Большой уделяет большое значение также то, что область занимает строительство: непосредственно влияет на функциональность структуры и возможности, которые арендаторы будут иметь после.

Проект дома 8 на 10 м очень популярны. Такие структуры являются компактным и экономически эффективным (из-за малых размеров здания и украшения не оставит много денег), и общая функциональность не страдает вообще. Дом со сторонами 8 и 10 метров, хорошо расположен на очень маленьком клочке земли, можно получить строго индивидуальный макет.

Архитекторы умудряются гармонично вписываться в планы всех самых важных места, даже добавить в квартиру на чердаке или в подвале. Много вариантов домов такого типа может содержать веранды и гаража.

Необычные идеи для ремонта
Для человека, обладающего фантазией, особым материалом для творчества являются старые или использованные предметы и материалы. С их помощью можно получить интересные интерьерные решения для загородного дома в различной технике.
Старые шины или бочки будут кстати в качестве основания стола, из деревянных паллет получаются оригинальные кресла, кровати и полки.
Оригинальной формы пеньки станут не только табуретами, но и журнальными столиками.
Из перегоревших лампочек и пустых баночек получаются замечательные подвесные вазочки или подсвечники, которые сделают жилище романтичнее.
Детей и подростков можно порадовать подвесными кроватями или горками вдоль перил лестницы.
Используя настенные рисунки и оригинальные полочки, преобразовать комнату легко и просто.
Идеи много, главное найти время и желания их воплотить.
В этом ролике вас ждет видеообзор интерьера коттеджа в классическом стиле.
Специфика планировки одноэтажного дома
Коттеджи высотой в один этаж отличаются относительной простотой их возведения. Сооружение значительного размера целесообразно строить, если вы – владелец обширных земельных угодий или же у вас большая семья.
Планировка одноэтажных частных домов включает жилые и нежилые помещения. К первым относятся гостиная и спальные комнаты, ко вторым – прихожая, коридор, кухня, а также ванная, туалет, котельная и кладовая.
Занимаясь проектированием, нужно следовать ряду рекомендаций:
- Туалет должен находиться недалеко от кухни. В идеале эти помещения должны располагаться вдоль одной стены. Так будет проще организовать монтаж водопроводных сетей.
- При планировке комнат в частном доме нужно отказаться от проходных помещений.
- Если у вас в планах – устройство мансарды, то следует тщательно обдумать размещение лестницы – она не должна стать помехой движению.
- Котельная и кладовая должны быть отделены от жилого пространства.
Особенности оформления отдельных помещений
При выборе материала многое зависит от функциональных особенностей помещения.
Для ванной комнаты или душевой лучше выбирать отделку с максимальной степенью водостойкости.
В прихожих подойдут покрытия, устойчивые к механическим повреждениям.


Сочетание дерева и искусственного камня в кухонном интерьере создаст ощущение Средневековья. Навесные балки, меховые аксессуары, пол из бруса, люстры с имитацией рогов – и мы окажемся в охотничьем домике. В любом варианте следует использовать влагостойкие материалы в качестве напольного покрытия и кухонных фартуков.
Часто владельцы объединяют рабочую кухонную зону со столовой. Классическая модификация в современном стиле отлично будет сочетать дерево и стекло. Индустриальный стиль предполагает использование практичных промышленных деталей: труб, проводов, ламп. Сельский вариант с плетеными элементами и натуральным деревом создаст уютную атмосферу.
Гостиная – зона отдыха, общения, совместного времяпрепровождения. Ее чаще всего оборудуют камином. Встречаются варианты расположения гостиной на веранде или террасе. Стеклянные перегородки в современном интерьере расширяют границы.
Поскольку в загородном доме многие обустраивают творческие мастерские, научные лаборатории или библиотеки, то для них дизайнеры предлагают отдельные проекты, как и для отдельного кабинета. Обычно обстановка и отделка в них проста и лаконична. Отделочные материалы подбираются с учетом комфортного ощущения и функционального назначения.

8фотографий































![Интерьер загородного дома: 100+ фото [лучшие идеи дизайна]](http://prazdnikmastermarket.ru/wp-content/uploads/b/7/e/b7ee938fdb9736e1bc1496e648d7435d.jpeg)

















