Примеры готовых сооружений
Вот так может выглядеть качественная, добротная баня в гараже. Почти все поверхности выполнены из деревянных гладких досок светлого цвета. Каменная стена отделяет парную от основной части печи, выведена наружу только емкость с нагревающимися камнями. Светильник только один – ромбовидный, над входной дверью (которая светлее окружающих ее стен).
Вот другой пример – с печью, размещенной в самом парном отделении. Вокруг нее стены отделаны камнем, каменной сделана и подложка, а вся остальная часть помещения декорирована более привычно – досками. Основная конструкция выполнена в виде ступеней, вокруг входной двери использована имитация сруба.
Наглядно воплощение проекта бани в подвале гаража можно посмотреть далее.
Расчет стоимости
Стоимость бани с хозяйственным блоком складывается из множества факторов, причем в разных регионах России она может колебаться. Если провести усреднение диапазона цен, можно сказать, что стандартная конструкция площадью 18–20 метров квадратных обойдется, в зависимости от используемых материалов, в следующие суммы:
- из бревна необработанного – 500 – 600 тысяч рублей;
- из кирпича (газоблока, пеноблока) – 900 тысяч – один миллион рублей;
- из бруса клееного – 1100 – 1200 тысяч рублей;
- из бревна оцилиндрованного – 500 – 600 тысяч рублей;
- из бруса профилированного – 400 – 500 тысяч рублей;
- из бруса простого – 300 – 400 тысяч рублей.
Здание, возведенное по каркасно-щитовой технологии, обойдется в сумму порядка 800 тысяч рублей. Обустройство фундамента ленточного типа для здания потребует дополнительных финансовых вложений приблизительно в 200 тысяч рублей.
Более подробно о проектах двухэтажных бань рассказано по этой ссылке.
Баня и гараж в одном здании: за и против
Несмотря на кажущуюся несовместимость данных помещений, в этом сочетании имеются свои преимущества. Среди них есть как заметные, так и скрытые, на первый взгляд невидимые. Плюсами совмещения гаража и бани являются такие.
- Если проект составлен и выполнен правильно, банная печь может отапливать и гараж. Так достигается существенная экономия расходов на отопление помещений.
- Гараж можно использовать в качестве дровника. Такое решение сэкономит место на участке, избавить от надобности строить сарай для запасов дрова. При этом в гараже поленья отлично сохранятся от погодных колебаний.
- Довольно часто на втором этаже подобных помещений строится мансарда. В результате получается гостевой домик для отдыха. В подобном строении можно и отдохнуть, и попариться в баньке, и машину завести в гараж. Комфорт — да и только! Такую многофункциональность по достоинству оценят не только хозяева домика, но и приезжающие к ним гости.
- Когда рядом с гаражом баня, то после ремонта автомобиля можно тут же всю липкую грязь на теле смыть в бане. Для этого даже не надо будет появляться в грязном виде на улице, чтобы добраться до баньки.
Однако при постройке гаражно-банного комплекса следует учитывать некоторые строительные тонкости.
| Этапы строительства | Почему их соблюдение обязательно |
| Обеспечение гидроизоляции. | В силу своей функциональной специфики гаражное помещение «богато» выделяющимися в нем газами и жидкостями, которые негативно отражаются на фундаменте данного помещения. А для бани характерны пары, горячий воздух, влажность. Все это также неблагоприятно влияет на основание строения. Учитывая вышеперечисленные особенности гаражного и банного помещений, в целях долговечности постройки нужно сделать качественную гидроизоляцию. |
| Теплоизоляция между помещением бани и гаража. | Так как они существенно разнятся по температурным данным и по влажности, то просто необходимо создать теплоизоляцию между гаражом и баней во избежание разрушения шва стены. Строители рекомендуют не ограничиваться одной стеной, а воздвигать две между помещения гаражно-банного комплекса. |
| Обеспечение водоотведения от бани и гаража и водостока ливневых и талых вод. | Это также поможет продлить срок службы постройки. |
В зависимости от предпочтений и финансовых возможностей хозяев обустраивают отапливаемый гараж с баней либо сооружают целый гостевой домик. Правда, во втором случае хлопот будет значительно больше — за счет возведения мансардного этажа.
Баня с беседкой под одной крышей: варианты исполнения
По типу постройки прибанные беседки могут быть:
1. Открытые.
2. Закрытые.
Первые – более легкие сооружения, имеющие совмещенный с банным пол и единую кровлю. Крыша ставится на опоры, которые при желании можно объединить бордюрами или соединить перилами. Таким образом удастся обозначить границы территории. Это наиболее выгодный в финансовом аспекте проект, поскольку в нем не предусматривается возведение капитальных перегородок и стен.
Строительство единого комплекса наиболее выгодно
Не будет здесь и остеклительных работ. Открытая беседка – это просто площадка под крышей. От ветра, в такой пристройке, не спастись, зато дождь отдыху помехой не будет. Глядя на вышесказанное становится понятно, что открытые конструкции – сезонная прерогатива.
Баня с открытой беседкой
Вторые – можно с уверенностью отнести к категории капитальных строений, так как они имеют настоящие стены и большие панорамные окна. Баня, помещенная с такой беседкой под одной крышей, будет выглядеть монолитным строением.
Баня с остекленной беседкой
Если же такую пристройку еще и оборудовать камином или мангалом, то, даже не будучи особо утепленной, она получит достаточно комфортную атмосферу. В ней будет приятно находиться даже в лютые морозы, не говоря уже о весенне-зимнем периоде.
Баня с уютной беседкой и камином
Беседка закрытого типа считается полноправной комнатой в планировке банного домика. Можно составить проект застройки таким образом, что пара стен веранды окажутся съемными или раздвижными, что позволит активно ее эксплуатировать и в летний период, легким движением руки преобразовывая ее в практически открытую конструкцию. Весьма практичный и универсальный вариант, о котором стоит задуматься всерьез.
Практичный вариант – беседка с съемными стеклами
Есть еще один компромиссный способ возведения бани с беседкой под одной крышей. В нем пристройка делается по полуоткрытому типу. В этом случае конструкции добавляют лишь две капитальные стены, преимущественно с тех сторон, откуда веют господствующие в этой местности ветра. Такой подход позволит чувствовать себя в беседке более комфортно, потому что сквознякам в ней не будет места. Можно сделать оригинальный шаг и возвести одну из стен вместе с встроенным в нее камином.
Баня с беседкой полуоткрытого типа
Полы в пристроенной веранде правильно собирать на лагах и делать их из натурального дерева, чтобы на ней всегда было тепло и сухо. Укладывая доски настила, нужно оставлять между ними набольшие зазоры. Задача этих зазоров – обеспечить в беседке вентиляцию и позволить беспрепятственно стечь на землю влаге с разгоряченных тел. Естественно, используемая доска должна быть идеально обработана и не ранить ноги занозами и острыми гранями.
Поле беседке рекомендуется делать из натурального дерева
Древесина лиственницы устойчива к гниению
Есть у лиственницы и не менее серьезный недостаток. Дело в том, что это дерево считается «холодным». В качестве альтернативы при строительстве можно использовать в качестве напольного настила террасную доску, сделанную из древесно-полимерного композита.
Террасная доска отличная альтернатива лиственнице
Практичным решением будет использование в обустройстве беседки легких алюминиевых профилей. При желании скрыться от любопытных глаз вместо стекол в них вставляют непрозрачный, однако легко пропускающий дневной свет, цветной сотовый поликарбонат.
Сотовый поликарбонат поможет скрыться от посторонних глаз
Защиту от надоедливо жужжащей мошкары обеспечат москитные сетки. Да, все эти приемы удорожат строительство, но расширят возможности эксплуатации беседки. Наверное, не стоит на них экономить.
Размещение на дачном участке
Основа любого строительства – предварительные расчеты. В частности, это касается чертежа будущей бани. Вариантов для создания чертежа масса – можно доверить это дело профессионалу, а можно выполнить проект своими руками. Чертеж, согласно заданным параметрам, можно заказать в проектно-сметном отделе, либо приобрести готовый проект с трехмерной визуализацией на одном из специализированных сайтов.
Самостоятельный проект также возможно выполнить различными способами – начертить от руки или смоделировать баню в специальных компьютерных программах. Не нужно забывать и о том, что в проект вносятся данные также о печи, которая будет установлена в бане, а также о видах и количестве используемого материала.
Бюджетные варианты
Совмещенные бани строят, как правило, из соображений экономии сил и средств. Поэтому, большинство проектов таких сооружений экономичны. Бани 3х4 на даче или 4х4 считаются бюджетными, но, чтобы сэкономить еще больше, мастера прибегают к разнообразным хитростям.
- Небольшую баню с минимальным количеством комнат строить выгоднее, чем обыкновенную конструкцию. При возможности, со временем добавляются пристройки;
- Самой низкой по себестоимости считается баня из рубленого леса в местностях, где достаточно деревянных ресурсов;
- По технологии возведения дешевле всего обойдется каркасная баня;
- Самый популярный недорогой материал для строительства – арболит, то есть смесь древесных опилок с цементом;
- Чем легче вес несущих стен, тем проще нужен фундамент под баню – соответственно, уменьшается стоимость основания;
- Если денег не хватает на постройку полноценного здания, то можно воспользоваться компактными переносными мини-банями. Они лишь недавно появились в продаже, но уже завоевали определенную популярность.
Самый бюджетный вариант полноценной бани – постройка с минимальным количеством комнат. По сути, минимум состоит из двух комнат:
- Маленького тамбура-предбанника, чтобы можно было оставить одежду;
- Самой парилки.
В данном случае парная совмещается с моечной, что существенно экономит место. А для того, чтобы оставить одежду и не пропустить холодный воздух в парную достаточно сравнительно небольшого тамбура. Такая конструкция удобна тем, что не лишает возможности со временем ее модифицировать и пристроить другие комнаты, террасу и санузел или же кухню, совмещенную с баней.
Такие парилки, как правило, размером менее 6х6, с туалетом такую маленькую конструкцию вряд ли получится спроектировать
Только важно подобрать правильный размер печки, чтобы во время мытья об нее не обжигаться. Проекты бань с хозпостройками популярны за счет своей функциональности
Конечно, при строительстве хочется сэкономить как можно больше денег. Но при возведении бани есть такие вещи, на которых экономить нельзя ни в коем случае. Не нужно покупать неизвестные материалы. Они могут быть намного дешевле, но на поверку баня развалится уже через месяц эксплуатации. Не нужно использовать материалы, которые не годятся для бани – например, пенопласт.
Сарафанное радио по типу: «а вот у меня друг так сделал и все прекрасно» тут не работает.
Никакой экономии на электропроводке и комплектующих – баня считается местом повышенной пожароопасности, поэтому провода должны быть качественно защищены.
Желательно избегать самодельных печей – на крайний случай можно обратиться к печнику, который сложит качественную конструкцию.
И, самое главное, всеми силами стараться избегать горючих материалов (сайдинга, к примеру) при отделке всех помещений.
Пристрой к бане беседки с мангалом
Мангал мангалу рознь. С этого и надо начинать. Никто, кроме вас не знает, какой именно мангал имеется в виду — у кого-то это будет переносной, который в любом месте поставить можно, а у кого-то стационарный, кирпичом выложенный. У третьего слово «барбекю» не прижилось, и он огромную печь для барбекю мангалом зовет…
Во всех перечисленных случаях беседки будут разными. Точнее сказать не сами они, а то место, которое вы выделяете под мангал.
Ленточный фундамент. Фото СтройДом
В минимуме достаточно оставить небольшую свободную площадочку, на которую будет ставить переносной мангал, в остальных может понадобиться фундамент.
Фундамент нужен всегда, когда на грунт оказывается большая нагрузка. Он ее перераспределяет в грунте. Фундамент — это посредник между предметом большой массы и несущим слоем грунта (то есть таким, который не проседает под тяжестью).
Из сказанного следует вот что:
- надо знать, на каком грунте ставите свою пристройку;
- надо просчитать вес будущей печи.
Просчитать вес печи несложно, если будете заказывать мастеру или покупать готовую. В обоих случаях вам будет сказана масса и то, нужно ли для такой массы сооружать фундамент.
Если будете делать сами… Под кирпичную печь копают ямку с припуском 10 см и на глубину в полметра.
Дно засыпают 5-сантиметровым слоем песка, поверх него можно положить бетонную плиту или слой бетона — с обязательным армированием. Высота бетонного слоя — 20 см. Оставшиеся 25 см забутовываются смесью кирпича, камня и бетона. Поверх выкладывается кирпич на раствор — это уже основание выше уровня земли.
СОВЕТ! Не делайте пристройку к бане в виде беседки с мангалом, если есть возможность подтопления этого участка. А если близко подпочвенные воды, то очень желательно сделать дренаж или водоотвод.
В сущности, если под мангал сделано адекватное его весу основание, то вся остальная часть строения может быть какой угодно — хоть тент-зонтик. Главное — это обеспечить опять же пожарную безопасность.
Поэтому тем, кто собирается из дерева делать своими руками пристрой к бане в виде беседки с мангалом, стоит подумать не только об обработке древесины антисептиками (потому что она на улице), а еще и , чтобы ей не грозило возгорание от присутствующего источника огня.
КСТАТИ! Если делается большая печь с дымоходной трубой, то не стоит делать кровлю из горючего материала. Ну и искроуловитель/искрогаситель вам в помощь. Не забывайте о таких «мелочах».
Что касается пола — пол желательно делать керамический, из плитки. По крайней мере это решение относится к зоне, в которой будет приготовляться пища. Остальное — на ваше усмотрение.
На этом специфика беседки с мангалом исчерпывается. Если будет оборудоваться настоящая летняя кухня, стоит задуматься вот о какой задаче: на кухне нужна вода, а вода в беседке зимой — не очень хорошая идея, учитывая морозы. Следовательно, придется все это сливать — точно так же, как сливаете воду из банной системы. Такая расплата за удобство.
Видео
В этом ролике показана… цивилизация: как собрать своими руками добротную открытую беседку с металлическими фермами, сделанную тайванцами. Какой удобный обогреватель с баллоном газа можно использовать для ее обогрева. В общем, сборка конструктора, конечно, но смотреть приятно:
А вот у автора этого ролика идея от проекта до воплощения делалась сугубо сообразно его представлениям о желаемом. И не без переделок (а когда без них обходится?) он все-таки добился того, чего хотел. Это беседка с мангалом-грилем посередине, чтобы обогревал всю беседку, закрытая, из бруса. Внутри сделана летняя кухня, газовая плита на баллоне. Количество людей внутри — до 8 человек. Полный комфорт — для четверых. На наш взгляд — проект отличный, а доработка проблем с тягой — полезно знать, что в помещении может понадобиться принудительная вентиляция.
Идеи для реализации можно позаимствовать из этого ролика с фотографиями уже кем-то воплощенных проектов:
Полезная информация найдется и в этом ролике — все этапы постройки расписаны подробно, с технологиями, инструментами, материалами.
*** У нас есть еще один материал, посвященный беседкам, террасам и верандам, возведенным под одной крышей с баней. Но там говорится о проектах, которые включали эти пристройки с самого начала.
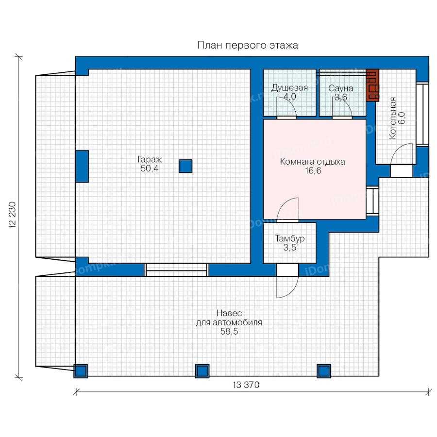
№1. Проект гаража на две машины с баней и навесом
Проект будет интересен тем, у кого в семье 2-3 автомобиля или часто приезжают гости на своем транспорте. Правда, и места для постройки понадобится достаточно, так что для совсем маленьких участков этот вариант не годится – габариты строения 12,23*13,37 м. Из особенностей проекта отметим:
- просторное место для стоянки двух авто (площадь 50,4 м2). Места достаточно, чтобы организовать систему хранения дров, необходимых инструментов и даже садового инвентаря
- дополнительно предусмотрен навес для авто, куда можно припарковать третью машину;
- банная часть изолирована от гаража и имеет собственный вход через тамбур;
- рядом с сауной предусмотрена душевая и комната отдыха (16,6 м2), где легко можно будет поставить диван, пару кресел и столик;
- также проект предусматривает котельную с отдельным входом;
- общая площадь – 84 м2.
Автор проекта предлагает возводить постройку из керамоблока (он отличается высокой прочностью, долговечностью и теплоизоляционными качествами), отделывать стены штукатуркой, а крышу перекрывать металлочерепицей. Данное решение отлично подойдет для больших семей, а также для любителей провести время в большой компании – парковочных мест и пространства для отдыха более, чем достаточно.


Баня с сараем под одной крышей: проекты

Если предусмотрено совмещение сарая, бани и других построек, то целесообразно их возводить под одной крышей. Помещения разные по функциональности. В бане присутствует влага, высокая температура, топится печь. Сарай отводят не только для хранения вещей. Внутри помещения организовывают мастерскую, где могут использоваться механизмы и сложное оборудование.
Из-за специфического назначения разных помещений в сарай и баню делают отдельный вход с улицы. Простенок между двумя помещениями ставят из негорючих материалов
Дополнительно важно позаботиться о хорошей шумоизоляции и гидроизоляции. Из сарая в баню не должны проникать запахи бензина, машинного масла и других химических веществ

Сарай можно переоборудовать под дровяник
Здесь важно по максимуму защитить хозяйственное помещение от проникновения пара с бани. Отсыревшие дрова плохо горят, на древесине заводится грибок, постепенно расползающийся по стенам здания
Хозблок с баней и туалетом

Одним из популярных проектов является баня, туалет и хозблок под одной крышей с пристроенной террасой. Комплекс вмещает все помещения первой необходимости, вдобавок имеется площадка для отдыха.

Сложность проекта зависит от типа туалета. Если в бане с хозблоком поставить биотуалет, отпадает необходимость прокладки дополнительной ветки канализации. Отходы будут собираться в накопительной емкости, требующей периодической очистки. Если для туалета ставить унитаз, понадобится канализация, подведенная к септику или выгребной яме. Чтобы обеспечить слив нечистот, в туалет подводят отдельную ветку водопровода.
Наличие туалета под одной кровлей с баней и хозблоком создает еще одну проблему – обустройство общего отопления. На морозе зимой вода в унитазе замерзнет, и биотуалет тоже не будет работать. Отопление должно обогревать все помещения, но максимальное тепло должно поддерживаться в парилке бани.
Проект бани с хозблоком и дровяником

Хозблок не всегда хочется занимать дровами. Внутри помещения и так мало места для хозяйственных нужд. За дровами тоже неохотно бегать по грязи под дождем. Проще усовершенствовать проект и отвести место под дровяник, но не за счет уменьшения остальных помещений. Удобнее к хозблоку с баней пристроить навес. Часть площади отводят под дровяник, а на остальном месте организовывают летний отдых.
Проект угловой бани с хозблоком

Не все участки имеют прямоугольную форму. Вдобавок на территории двора может располагаться маленький водоем, электрическая опора или другой объект, неподдающийся переносу. Обойти препятствие поможет проект угловой постройки. Однако баня с хозблоком не должна просто хаотично стоять среди двора. Угловой проект позволяет компактно расположить здание, соблюдая правила эстетики. Если во дворе есть свободный угол, то его нужно занять. При наличии свободного места, количество комнат увеличиваю за счет вытянутости здания в обе стороны от угла. Комплекс приобретает форму буквы «Г».
Баня с хозблоком и верандой

Добавление к бане и хозблоку веранды является удобным решением для владельца дачи. Под одной крышей собраны технические, жилые и помещения для отдыха. Хорошо отделанная веранда заменит жилой дом. Если на дачу приезжать только летом, в веранде можно жить. Проект комплекса сложный, требует точных расчетов. Обязательно предусматривают террасу или большой навес.
Двухэтажная баня с хозблоком

Двухэтажная постройка выгодна владельцу маленького участка. В здании размером 8Х5,4 м поместится просторная баня, комната отдыха, хозблок и жилое помещение. Все технические комнаты располагают на первом этаже. Здесь отводят место под баню, дровяник, техническое помещение, которое используют как сарай или хозблок. На первом этаже оборудуют гостиную с выходом на крыльцо.
Второй этаж полностью отводят под комнату отдыха. При желании можно обустроить жилое помещение. Санузел лучше установить на первом этаже.
Преимущества и недостатки
Воплощая мечту любого русского мужика о удобном гараже и бане для отдыха, нужно заметить, что такой проект обладает рядом бесспорных преимуществ. Но и, как любой предмет имеет другую сторону, так и здесь не может обойтись без недостатков.
Плюсы
Гараж, имеющий внутри баню, отмечен большим количеством достоинств:
- Общая комфортабельность.
- Сооружение в целом, достаточно эргономично.
-
Экономия средств налицо – всегда дешевле построить одно большое здание, чем несколько маленьких.
- Тоже самое можно сказать и о экономии территории участка.
-
Функциональность помещения на высоте. По завершению любых работ (автолюбительских или садовых) можно тут же привести себя в порядок.
-
Одна система отопления и на баню, и на гараж, отличается не только практичностью, но и бережливостью.
- Можно рационально обустроить водоснабжение помещения.
- Гараж подтверждает свою универсальность местом хранения топлива для бани. Огромный плюс, что не нужно выходить за ним из помещения в плохую погоду.
- Если оснастить строение мансардой, то это уже будет похоже на гостевой домик с уличной зоной отдыха.
- Кроме всего прочего, такой объект выглядит очень привлекательно.
Совмещенная постройкаИсточник krov-torg.ru
Минусы
Все отрицательные моменты приходятся на долю тяжкого выбора при строительстве сооружения:
- Нужно определиться с гидроизоляционным материалом.
- Разобраться, что будет лучше с теплоизоляцией.
- Найти решение из чего будут стены.
- А за выбор облицовочных материалов и говорить не приходится. Разнообразие вариантов не на одну неделю раздумий и споров.
Основная загвоздка в том, что нужно совместить влажное помещение парилки с сухой зоной гаража. Казалось бы, конденсат неизбежен. А с ним близка и плесень с грибком. Из-за затхлости и зловония в скором времени помещение очень быстро потеряет свою ценность и будет непригодно к использованию.
Но если все правильно распланировать и запастись качественными строительными материалами, то эти проблемы легко решаются.
Нужно заранее подумать о гидроизоляции помещенияИсточник makemone.ru
Строительство
Процесс показан на данном видео:
Обустройство фундамента
Для начала необходимо согласно проекту произвести разметку. Если в качестве стенового материала выбрана древесина, достаточно будет столбчатого фундамента.
Для этого по площади участка посредством ручного бензобура пробуриваются отверстия глубиной в 1 метр, в которые монтируются готовые бетонные блоки либо асбоцементные трубы с последующей заливкой их бетоном. На этом этапе главным условием является соблюдение единого уровня над поверхностью грунта – порядка полуметра.
Возведение стен
Если приобретена сауна с хозблоком из деревянного бруса, достаточно, следуя инструкции, собрать уже подогнанные бруски в правильном порядке.
В случае возведения каркасно-щитовой постройки сначала выстраивается каркас из бруса, который впоследствии обшивается снаружи и изнутри плитами ОSВ с закладкой между ними теплоизоляции – пенопласта либо минеральной ваты.
Кровля
Сначала из деревянного же бруса изготавливается каркас, на который крепится кровельный материал – ондулин, металлочерепица либо любой выбранный аналог.
При установке кровельного покрытия необходимо предусмотреть качественную гидроизоляцию, препятствующую проникновению атмосферной влаги внутрь помещения и паробарьер, предотвращающий отсыревание деревянных конструкций кровли изнутри.
Всю информацию про деревянные бытовки для дачи найдете здесь.
Также нужно на этом этапе заложить дымоотводную трубу от печки-каменки. Дымоход лучше организовывать на основе нержавеющей трубы, поскольку классические асбоцементные сегодня не соответствуют нормам противопожарным и санитарным. Они при перегреве легко могут разрушиться и в процессе эксплуатации выделяют множество вредных канцерогенных веществ.
Если помещение чердака планируется эксплуатировать, например, в качестве гостевой комнаты, тогда кровлю необходимо дополнительно утеплить изнутри и осуществить декоративную отделку.
Внутренняя отделка
Заключается в обустройстве напольного основания и потолка. Сначала изготавливается несущий каркас из необработанного бруса, на который ложится половая шпунтованная доска толщиной три – четыре сантиметра.
Потолок же выполняется либо на основе деревянных досок либо обшивается панелями ОСВ.
О том, как правильно построить курятник узнаете тут.
Помещение парной
Лучшим материалом для внутренней отделки парилки традиционно считается осина. Обработанной осиновой доской обшиваются стены, потолок помещения, из нее же изготавливается в два – три ряда полок. Дверь в парную также должна быть деревянной либо выполненной из полупрозрачного термостойкого стекла.
Печь лучше использовать готовую металлическую, поскольку самостоятельное обустройство каменки в бане/сауне требует специфических навыков и определенного опыта.
Коммуникации
В процессе строительства необходимо предусмотреть подвод водоснабжающих, канализационных и электрических коммуникаций. Любые внешние участки трубопроводов необходимо оборудовать качественной теплоизоляцией, чтобы минимизировать вероятность их размерзания в зимнее время.

















































