Проект бани: основные помещения строения
Еще одним преимуществом такого типа бани является ее комплектация: прихожая, парилка, раздевалка, моечное отделение, туалет, комната отдыха с уголком для кухни. На втором этаже мансарда, где будут размещены спальни либо гостевая. По желанию украсить пространство второго этажа можно балконом, где будет еще одна мини-зона для отдыха.
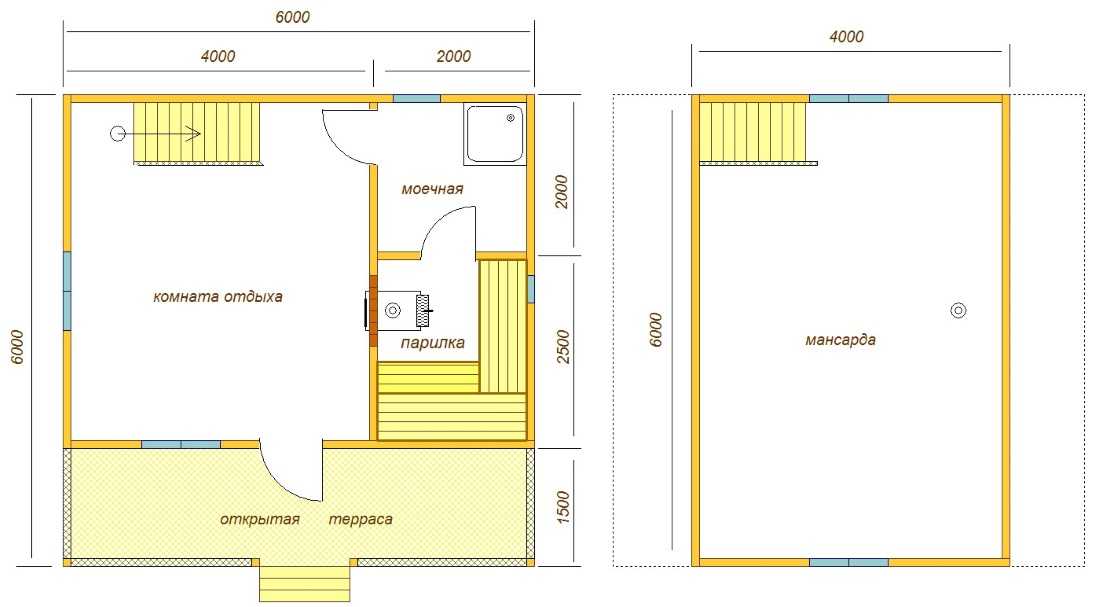
Вариант типового проекта бани 6 на 8Источник sevparitet.ru
Часто проекты бань 6 на 8 с мансардой предусматривают и наличие террасы — зоны отдыха на первом этаже, где зачастую готовят шашлыки. Здесь ставят кресла-качалки и другие атрибуты для комфортного отдыха.
Крыша
Важные правила для монтажа крыши:
Крыша основывается на стропильной системе. Она обычно делается из досок сечением 50х200 мм. Иногда применяется как кровельный материал настоящая черепица. Тогда стропила создают из бруса 100х150 мм;
Стропила опираются на верхний ряд брусьев или на потолочные балки, которые выступают за границы сруба
Важно проследить, чтобы расстояние между ними было не менее 60 см. Но иногда необходимо его увеличить
К примеру, когда нужно поставить мансардное окно;
На стропила сверху наносится слой пароизоляции, сверху устанавливается контробрешка. После чего происходит монтаж обрешетки и на нее кладется кровельный материал.
Если покрытие деревянной бани с мансардой происходит с помощью мягкой кровли, нужна сплошная обрешетка. Сверху необходимо установить слой фанеры, толщина которого будет от 8 до 10 мм.
Советы
Работы, связанные с планированием – ответственный этап строительства бани. К нему необходимо подойти со всей ответственностью.
После решения вопроса с планированием определите следующие важные организационные этапы:
- Возьмите на вооружение популярные размеры: 6х4, 6х6, 6х8 м.
- Продумайте материалы, из которых будет сооружаться баня.
- Можно скачать программу на ПК «3D моделирование». Это упростит этап планировки.


Стандартное расположение комнат обычно такое:
- вход с террасы в небольшую прихожую;
- дальше находится комната отдыха или предбанник;
- за ней два выхода: в санузел и парную.


Иногда душевую и парную снабжают между собой дополнительным входом. Все это располагают на первом этаже. Второй этаж чаще используют под развлечения, отдых либо хозяйственные нужды. Иногда на втором этаже обустраивают солярий. Это добавляет комфорт отдыху большой компании.
Купите готовый типовой конструктор. Создайте из сборочного комплекта стандартную баню. Придумывать собственные варианты деталей обустройства сложнее. Если свойства грунта на участке неустойчивы, используйте для строительства мансардного комплекса каркасные конструкторы. Укреплению фундамента бани будут способствовать столбчатые и винтовые конструкции фундамента.


Кроме свойств грунта важно учесть эстетику расположения бани на участке. Проект с мансардой и террасой подразумевает наличие обозреваемых пейзажей
Они станут весомой составляющей отдыха. Не забудьте защитить подкровельную комнату от температурного перепада. Это сложно, так как снизу на этаж будут проникать жара и влажность, а летнее солнце разогреет кровлю. В зимнее время на мансардном этаже будет особенно холодно.


Уделите внимание гидроизоляции в межэтажном перекрытии и подкровельном пространстве. Современные строительные материалы позволяют объединить русскую баню на пару с печью с домом под общей кровлей и мансардным этажом
Такой проект дома-бани не лишен преимуществ, но и недостатки у него тоже есть. Главным отличием таких проектов от обычных домов и бань является форма кровли, что не может не сказаться на несущих конструкциях. Учтите толщину стен и глубину фундамента. Хорошо продумайте функциональные особенности жилья.


Как правильно выбрать строительную компанию
Выбирать строительную компанию надо даже тщательнее, чем проект, ведь от благонадежности строителей зависит качество постройки и срок ее службы. Первоначальную оценку можно сделать хотя бы по фотографиям уже реализованных проектов бани 6 на 6 с мансардой. Если же таковых нет, то это один из сигналов, что лучше к таким строителям не обращаться.
Также не помешает лично позвонить и расспросить про применяемые технологии, наличие соответствующей техники, разрешения и сертификаты. Уровень готовности сотрудников отвечать на подобные вопросы достаточно наглядно показывает их квалификацию и отношение компании к клиентам.
Этапы постройки бани 6х8 из профилированного бруса
Профилированный брус – это натуральный и экологически чистый материал, который обладает хорошим уровнем теплоизоляции, из него можно построить крепкую и надежную баню.
Строительство бани из бруса 6х8 осуществляется в ряд этапов, которые описаны ниже.
Шаг 1. Подготовка фундамента
Существуют разные виды фундамента. Для постройки 6х8 обычно выбирают ленточный фундамент или монолитный.
На выбор влияют почва и уровень грунтовых вод. Правильно выбрать фундамент поможет геодезист, который определит все необходимые показатели.
Для установки ленточного фундамента нужно сделать разметку, после вырыть траншею. Сначала ее необходимо засыпать толстым слоем песка.
Следующим этапом станет установка деревянной опалубки и армирование. После можно заливать бетон. Рекомендуется использовать смесь марки М300 или выше.
Спустя 3 дня опалубку можно убрать.
Шаг 2. Сборка сруба
Перед возведением стен нужно обязательно сделать гидроизоляцию. Для этого необходимо залить фундамент битумом и покрыть рубероидом.
Перед укладкой брус нужно подогнать под нужные размеры, а также осмотреть на наличие трещин, сколов и сучков.
Лучше покупать готовый брус у производителя, в таком случае процесс строительства будет значительно проще.
Весь брус также нужно покрыть антисептиком, который защитит его от последующего потемнения и гниения.
Если всю баню обычно делают из бруса 150х150 мм, то для нижнего венца лучше взять брус побольше (150х200 мм). Кроме того, нередко используют брусья из сосны или липы, они достаточно прочные и недорогие. Но первые ряды лучше выложить более надежным и устойчивым материалом – брусом из лиственницы или осины.
Для соединения брусьев между собой используются деревянные нагеля. Конечно, можно использовать и металлические, но со временем они ржавеют, поэтому деревянные считаются более надежными.
Между звеньями нужно раскатывать утеплитель: джут или лен.
После постройки стен следует сделать лестницу, которая будет вести на мансарду.
Шаг 3. Установка крыши
После того, как сруб бани готов, можно переходить к возведению крыши. Крыша может быть односкатной или двускатной. Популярнее второй вариант.
Для монтажа двускатной крыши понадобятся бруски с сечением 50х150 мм, доски толщиной 25 мм и кровельное покрытие (профнастил, еврошифер, металлочерепица).
Сначала нужно сделать стропильную систему, затем обрешетку. Прикрепить к лицевой стороне несущей конструкции кровельные листы, утеплить перекрытие минеральными плитами.
Рекомендуется также утеплить стропильную систему, в этом случае теплоизоляционный материал нужно разместить между стропилами.
Шаг 4. Внутренняя отделка
Завершающим этапом станет отделка помещений. Для этого используют разные материалы: вагонку, керамическую плитку, декоративный камень и т. д. Вариантов оформления бани может быть масса. Главное выбирать безопасные материалы, которые устойчивы к воздействиям пара и влаги. Полы в парной и моечной должны быть нескользящими.
Иметь свою баню – это прекрасно. Вы можете ходить в парную в любое время и отдыхать в бане столько, сколько сами пожелаете. А если она еще большая, то это еще лучше! Баня 6х8 м может заменить дачный или гостевой дом, в котором можно остаться с ночевкой.
5
2 550
Расположение здания на участке
Баня – не главное строение, поэтому желательно располагать ее в глубине участка, за домом. Это придаст некоторой уединенности и позволит увеличить степень комфорта отдыхающих людей.
Если планировка бани 6 на 6 не предполагает места для бассейна, то перед входом в здание можно установить бочку с прохладной водой или оборудовать небольшой пруд, куда так приятно окунуться после жаркой парной. При наличии отдельного выхода к естественному водоему, следует располагать выход из бани «лицом» к нему, чтобы максимально приблизить погружение в воду и скрыть людей от чужих глаз.
Бассейн около баниИсточник pinterest.com
Коммуникации
Правила подразумевают подготовку проекта строения одновременно с проводкой всех нужных коммуникаций. Обязательно понадобятся вода, свет (иногда газ). Прокладка водопроводных труб проходит в ходе строительства сооружения. Не стоит упускать из виду монтаж качественной системы вентиляции во всех помещениях (в том числе в комнатах отдыха), иначе повысится влажность. Влажный воздух будет являться причиной появления грибка на стенах. Некоторые виды строительного материала начнут быстро разрушаться.
Для сохранения оптимального тепла зимой важно предусмотреть обогревательную конструкцию. Только с дополнительным обогревом можно добиться оптимального температурного режима в холод
Кроме вентиляции в банном помещении важно предусмотреть качественную гидроизоляцию и теплоизоляцию. Монтаж коммуникационных систем в двухэтажном строении осуществить проще, чем в одноэтажном строении с пристройками.
Требования к постройке
Прежде, чем приступать к планированию, разработке чертежей, важно прочесть нормативную документацию действующего законодательства, которая регламентирует возведение бань

В этот перечень входят:
- СанПиН 1.2. 3150-13 «Санитарно-эпидемиологические требования к размещению, устройству, оборудованию, содержанию и режиму работы бань и саун».
- СП 22.13330.2011.
- СП 64.13330.2011 ‒ актуализированная версия СНиП II-25-80.
- ТКП 45-5.05-146-2009, ТКП EN 1995-1-1-2009. Требования к проектированию деревянных бань.
Узнать подробнее о нормах строительства на дачном участке:

Кроме того стоит учесть следующее:
- Баню лучше строить на возвышенности.
- Отдельно стоящая конструкция должна хорошо просматриваться из окон жилого дома.
- При выборе места на участке всегда учитывается роза ветров, чтобы дым не мешал соседям. Это касается сооружений, которые отапливаются дровяными печами.
Рекомендуем ознакомиться:
- Как выбрать камни для печи в баню
- Сэндвич дымоход своими руками
Этапы строительства
Существует несколько этапов постройки бани с мансардой.
Подготовка места
Сюда стоит отнести не только разметку участка, но также и уборку камней, сухой травы, а также различного ненужного мусора.


Фундамент
Прежде всего, стоит определиться с фундаментом. Можно сделать ленточный или же смонтировать свайный. Что касается первого из них, то он достаточно прочный, однако и стоить он будет дорого. Кроме этого, на усадку потребуется от трёх до шести месяцев, что понравится не каждому хозяину. Также стоит отметить и то, что ленточный фундамент можно сделать не на каждом грунте. Его не стоит использовать в тех местах, где слишком много влаги.


Чаще всего для бань используют свайный фундамент. Его возведение достаточно быстрое, он очень прочен и практически не уступает ленточному аналогу. Несмотря на это, для свайного фундамента потребуется слишком дорогостоящая техника, а также точные расчеты.

Каркас
Что касается строительства каркаса, то сделать его можно практически из любого материала. Однако внутренняя обшивка должна быть обязательно сделана из древесины. При монтаже каркаса необходимо учесть не только высоту парилки, но также и других помещений. Кроме этого, стоит знать и то, сколько места будет отведено для мебели.




Крыша
Когда будет полностью сделан каркас, можно приступать к строительству крыши. Если требуется немного увеличить объём самой мансарды, то стоит остановить свой выбор на двускатной крыше. Однако в этом случае потребуется наращивать высоту несущих стен от 1 до 1,5 метра. Тот, кто не особо беспокоится о полезной площади мансарды, может остановить свой выбор на ломаной крыше. Её можно установить и сразу, и в процессе переоборудования помещения.




Отделка внутри помещения
Начинать все отделочные работы нужно с установки печки. Можно сделать и железную, и каменную топку – всё зависит от предпочтений, а также бюджета.




Что касается парилки, то её стены обязательно надо обшить доской, лучший вариант – доска из лиственных пород. Кроме этого, во время выполнения отделочных работ надо смонтировать каркас и обтянуть его фольгированным утеплителем.




В комнате для отдыха вместо утеплителя стоит использовать пароизоляцию. Что касается стен, то их не обязательно обшивать деревом – достаточно использовать любой вариант отделки. Что касается отделочных работ в мансарде, то они проводятся аналогично всем работам в бане. Надо обязательно сделать их водостойкими и способными хорошо удерживать тепло внутри помещения.
Также надо позаботиться и о лестнице. Лучше всего её сделать пологой, с широкими и удобными ступеньками. Это необходимо для того, чтобы после парной человек спокойно мог по ней ходить, не поскальзываясь. Помимо этого, лестницу надо оградить перилами, которые послужат страховкой от падения с высоты.


Веранда. Нужна или нет?

Вопрос о веранде остается открытым в случае строительства малоформатных бань. Конечно, по всем статьям баня с верандой и мансардой смотрится предпочтительнее, нежели без нее. Все-таки небольшое пространство для отдыха на свежем воздухе только на бумаге кажется мелочью, а в реальности часто именно его и не хватает для того, чтобы добиться максимального удовольствия от времяпрепровождения в кругу близких и друзей.
Однако если дефицит полезной площади ощущается более чем остро, то лучше проект бани с мансардой осуществить без этого элемента. Все-таки не забывайте, что вы строите в первую очередь баню — и лучше приложить максимум усилий для того, чтобы после ее посещения у вас остались исключительно положительные впечатления.
В условиях недостатка полезного пространства можно заменить веранду более удобной комнатой для отдыха или небольшим балконом на мансарде. В таком случае вы нисколько не потеряете в комфорте, вот увидите. Тем не менее, несколько проектов с планировкой бань с мансардой, где нашлось место и для веранды, все же оставим тут.









Материалы
Существует большое количество материалов, которые можно использовать для постройки такого интересного и полезного помещения. Чаще всего для строительства используется древесина, однако многие делают баню из кирпича или из пеноблоков.
Брус
Среди большого количества видов древесины только брус не подвергается обработке. По этой причине его цена не слишком высока, однако и качество не самое лучшее. Несмотря на такие минусы, строение из профилированного бруса имеет и много плюсов. Оно практически не даёт усадку, не требует ни внешней, ни внутренней обработки. Баня из данного материала выглядит не только естественно, но и эстетично. Также стоит отметить и то, что брус очень легко переносит воздействие горячего пара.


Бревно
Данный материал представляет собой ствол дерева, обработанный на станках специальным образом. Бани из оцилиндрованных брёвен пользуются огромной популярностью, так как имеют свои особенности.
Если говорить о плюсах, то их достаточно много. Прежде всего, это лёгкость монтажных работ. И это неспроста, ведь все брёвна подгоняются по размеру, к тому же очень плотно прилегают друг к другу. Помимо этого, производители таких брёвен проводят их обработку, поэтому они полностью готовы к строительству.
Изготавливают оцилиндрованные брёвна из натуральной древесины, поэтому они безопасны для человека. Брёвна прекрасно пропускают воздух, хорошо держат тепло, не подвергаются воздействию плесени или грибка, а также очень быстро просыхают. Строения из брёвен служат своим хозяевам долгое время. Также к плюсам стоит отнести красивый внешний вид постройки.
Несмотря на большое количество достоинств, некоторые недостатки всё-таки имеются. Если при заготовке брёвен был удалён защитный слой, то строение будет подвержено внешним воздействиям.


Сруб
Одним из самых популярных материалов для строительства бань является древесина, в частности сруб, сделанный из круглых брёвен. И это не случайность, ведь он имеет большое количество преимуществ.
- Прежде всего, это экологически чистый и безопасный материал.
- Сруб отличается от других материалов высокой теплоизоляцией, а также хорошей звукоизоляцией.
- Баня из сруба практически никогда не даёт усадку, быстро устанавливается. При необходимости её можно перенести на другое место.
- Благодаря небольшому весу конструкции хозяева могут сэкономить на фундаменте.
- Такое строение очень красиво смотрится не только внутри, но и снаружи.
- Когда баня нагревается, древесина начинает приятно пахнуть.
Среди недостатков стоит отметить следующие:
- существует риск пожара;
- со временем сруб отдаёт влагу;
- так как испарения плохо выветриваются из древесины, то со временем может появиться грибок или плесень;
- потребуется провести дополнительную работу по заделке зазоров между брёвнами.


Пеноблоки
Такой вариант является одним из самых недорогих. Пеноблоки абсолютно безопасны для человека. Помимо этого, данный материал обладает высокой теплоизоляцией, в нём не заводятся ни насекомые, ни грызуны, а также не может быть грибка или плесени. Строительство из пеноблоков происходит очень легко и просто. К тому же не потребуется делать усиленный фундамент.
Несмотря на большое количество плюсов, стоит отметить и ряд минусов этого материала. Так как пеноблоки представляют собой пористую структуру, то они быстро впитывают влагу и слишком долго сохнут. Чтобы немного ускорить процесс сушки, можно сделать несколько дополнительных окон в бане, а это приведёт к потере тепла. Также надо сказать, что пеноблоки не являются дышащими, а значит, и внутри строения будет не так комфортно, как в бане, сделанной из древесины.


Печь — один из важнейших элементов бани
Проекты бани 6 на 6 из бруса рассчитаны на одновременное посещение группой из 3-4 человек без потери комфорта. Это накладывает определенный отпечаток на размеры парилки и душевой, которые необходимо отапливать и поддерживать определенную температуру. Оптимальной для этих целей является каменная печь. Она достаточно быстро прогреет помещения и не дает им быстро охладиться.
Каменная печь в бане из брусаИсточник stroisovet.com
В случае постройки двухэтажной бани, трубу от печи выводят по внутренней стене мансарды и обкладывают кирпичом. Материал получит тепло от трубы, нагреется и будет служить отличным источником поддержания температуры в комнате.
Другой вариант — монтаж двух водяных баков. Один устанавливается внизу в помещении с печью, другой — на втором этаже, соединяясь с трубой дымохода, что позволяет нагревать воду в баке, отдавая тепло в помещение.
Видео описание
Подробнее о том, какую печь выбрать для бани, смотрите на видео:
В одноэтажном здании печь можно расположить следующим образом:
- Установка в парной. Стандартный вариант, позволяющий управлять степенью нагрева «из первых рядов».
- Комбинированная установка. Когда лицевая часть печи выводится в комнату отдыха и используется для равномерного нагрева обоих помещений.
- Отдельная установка. Печь монтируется в предбаннике. При этом там же размещаются поленница или склад других материалов. Если используется более современный вариант отопительных приборов, то такой способ позволяет менять температуру, не заходя в парилку.
Каждый вариант имеет собственные преимущества и является оптимальным для определенной планировки бани.

Печь в бане на дровах с баком для водыИсточник doka-realty.net.ru
Наполнение комнаты отдыха
После жаркой парилки необходимо успокоиться и нормализовать температуру тела. Идеальным местом для этого является комната отдыха. Каждый хозяин сам решает, что здесь будет расположено, подбирая наполнение в соответствии со своими вкусами и целями. Однако стоит с высокой степенью ответственности отнестись к используемым материалам и оборудованию.
- Мебель должна обладать устойчивостью к высокой температуре и влаге.
- При монтаже осветительных приборов обязательна качественная изоляция.
- Не стоит устанавливать слишком яркие лампы, это не позволяет расслабиться.
Также желательно выдерживать помещение в едином стиле. Это не имеет функционального значения, но скажет о чувстве вашего стиля.

Комната отдыха в банеИсточник mirturbaz.ru
Расположение здания на участке
Баня – не главное строение, поэтому желательно располагать ее в глубине участка, за домом. Это придаст некоторой уединенности и позволит увеличить степень комфорта отдыхающих людей.
Если планировка бани 6 на 6 не предполагает места для бассейна, то перед входом в здание можно установить бочку с прохладной водой или оборудовать небольшой пруд, куда так приятно окунуться после жаркой парной. При наличии отдельного выхода к естественному водоему, следует располагать выход из бани «лицом» к нему, чтобы максимально приблизить погружение в воду и скрыть людей от чужих глаз.
Бассейн около баниИсточник pinterest.com
Фото-примеры бань 6х6
Для бань 6 на 6 проекты, фото которых представлены ниже в ассортименте, являются наиболее ходовыми вариантами.
Бревенчатая баняИсточник test.srubyizbrevna.ru

Двухэтажная баня в разрезеИсточник kayrosblog.ru

Баня из бруса с открытой террасойИсточник 9dach.ru
Проект бани с жилой мансардойИсточник lesoresurs.com

Баня из клееного брусаИсточник 9dach.ru

Одноэтажная баня с небольшой террасойИсточник chance.ru
Баня с вместительной террасой и мансардойИсточник brusservis.ru

Баня из пеноблоков с крытой террасойИсточник bouw.ru

Двухэтажная баня из бруса с открытой террасой и балкономИсточник m.2gis.ru
Заключение
Баня 6х6 – оптимальный вариант для воплощения ваших желаний в реальность. Для ее возведения вам потребуется только выбрать проект, а все остальное за вас сделают профессионалы. Постройка небольшой бани на участке позволит вам почувствовать всю прелесть очищения души и тела, которое не может подарить никакая ванная. А ощущение комфорта и глубокого спокойствия, которое получаешь после водных процедур, вряд ли возможно еще где-то отыскать.
Преимущества
Планировка двухэтажного дома бани 6х6 позволяет жить летом или круглый год. Такой проект имеет преимущества в плане экономии. Например, мансарда помогает визуально увеличить подсобные комнаты в бане, такие как парилка, раздевалка и душ. Это необходимо в том случае, когда предполагается, что там будут находиться несколько человек сразу.
Экономия получается также на заливке фундамента. Для построек не требуется много кубометров бетона. В основном хватает залитой площадки. Перед главным входом может располагаться терраса, а на верхнем этаже балкон. Беседки возле постройки не нужны. Утепление мансарды новыми материалами происходит быстро, не требует больших финансовых вложений, но позволяет обеспечить круглогодичное проживание.
Выбор размеров дома с парилкой 6х6 объясняется тем, что он обычно делается из бруса. В этом случае стандартным размером материала считается 600 см. Учитывается целое бревно, а не отрезки. Поэтому построение происходит почти без отходов, что является весомым плюсом.
Такая баня получается довольно большой, что позволяет создать внутри условия для жизни небольшой семьи или компании друзей. Без труда проводятся необходимые коммуникации, делается несколько комнат с разными назначениями.
Самостоятельное планирование
Несмотря на наличие большого количества различных схем – вы также можете спланировать будущее здание самостоятельно. Плюсом проектирования бани своими руками является возможность создания здания, которое будет полностью соответствовать вашим пожеланиям и потребностям.
Существует несколько полезных рекомендаций специалистов, на которые следует обратить внимание при самостоятельной проектировке
Размеры
Терраса не обязательно должна иметь фиксированные размеры. Несмотря на то, одна ее часть должна составлять одно целое с баней и не может выходить за ее пределы — другую можно растянуть до необходимых вам размеров. Площадь веранды определяется не длиной или шириной основного строения, а количеством отдыхающих на ней людей.
Также на размеры террасы сильно влияет второстепенные элементы, который вы планируете на ней разместить. Такие объекты как бассейн должны входить в планировку изначально и сильно увеличивают площадь веранды бани.
Форма

Баня с террасой
Традиционно веранда повторяет форму дома, что вполне естественно, учитывая то, что она является его своеобразным продолжением, однако это условие не является обязательным. Терраса также может иметь форму крытого коридора, который будет соединять дом и баню – на ней можно оборудовать домашний солярий или зимний сад.
Экстерьер

Терраса для бани
Материал, из которого будет возводиться терраса должен быть аналогичен стенам основного строения, чтобы пристройка выглядела органично. На фундаменте веранда должна располагаться с таким же заглублением, как и баня, чтобы ее усадка имела одинаковое значение с основной постройкой.
Второй этаж
Если баня будет возводиться с мансардой – террасу также можно расположить на уровне второго этажа посредством опорных столбов. Цена такой конструкции будет на порядок выше наземного аналога, однако свежий воздух и легкий ветерок будет гарантированной наградой за увеличенные расходы.
