№7. Проект «Лесная сказка»
Симпатичный уютный дом площадью 138 м2 отличается наличием достаточно просторного гаража, из которого можно попасть сразу в дом и оказаться в коридоре. На выбор будущих хозяев гостиная и кухня могут быть совмещены или разделены стеной. На первом этаже предусмотрено место для котельной, также располагается санузел и одна из спален.
На втором этаже разместились две компактные спальни и просторный кабинет. Последний по желанию может быть трансформирован в детскую или еще одну спальню. Большинство вещей можно будет расположить в отдельной гардеробной. На мансардном этаже, конечно же, присутствует свой санузел. Очень лаконичный проект, который учитывает основные требования к комфортной жизнедеятельности и при этом оставляет свободу выбора.
Стили интерьера
Недорогие и быстровозводимые каркасные дома довольно быстро приобрели популярность в нашей стране, выбирают их в основном люди со средним достатком, поэтому шикарные варианты интерьера для каркасного дома практически не востребованы. Чаще всего для каркасных конструкций выбираются следующие стили:
- Скандинавский стиль;
- Классический американский интерьер;
- Охотничий домик;
- Классический минимализм.
Скандинавский стиль преобладает в каркасных домах Германии, Швеции и других европейских стран. Выделяется он окрашенными в белый цвет стенами, открытыми необработанными потолочными балками, деревянным полом, простой и функциональной мебелью, совмещением нескольких помещений в одно.
В американском стиле в основном наблюдается минимализм с особенностями в отделке и выборе мебели. Предпочтение отдается пастельным тонам, применяются классические люстры, все помещения используются отдельно без совмещения. Если вы планируете воспроизвести такой стиль, фото интерьера каркасного дома можно легко найти в сети.
В нашей стране часто оформляют дома в классическом стиле, либо стилизуют их под охотничьи домики. Главная особенность таких дизайнов – использование деревянных панелей либо блок-хауса в отделочных работах, камин в гостиной, классическая деревянная мебель, шкуры животных на полу, приглушенное освещение. В таком доме приятно коротать долгие зимние вечера, греясь у камина, и наблюдать за снегом через пластиковое окно.
Узлы каркасного дома
Фундамент – основа любого строения. Тип выбирается в зависимости от почвы, климата, веса будущей постройки.
Стены имеют вид пирога – несколько слоёв разных материалов, укрепленных внутри каркаса и обшитые панелями. При этом, для предотвращения попадания влаги снаружи (плюс – защита от ветра), а также для недопущения накапливания конденсата внутри стенок, обязательно руководствоваться правилами: с наружной части дома натягивается ветрозащита, а со стороны помещений – парозащитная плёнка. В результате «начинка» пирога, представленная утеплителем, будет «дышать», но не намокнет и не потеряет своих свойств.
Вариант формирования стены
Вертикальные перекрытия и внутренние стены – тоже состоят из нескольких слоёв. Но тут утеплитель можно либо совсем не укладывать, либо совмещать с звукоизолирующими материалами.
Цены на теплоизоляционные материалы
Теплоизоляционные материалы
Дымоход – его устройство зависит от типа котельной и от её расположения. Некоторые современные котлы допускают вертикальную конструкцию трубопроводов – тогда его можно вывести через ближайшую от котла стену. Но некоторые виды котельных потребуют вертикального устройства. Тогда придётся включать в проект и его
Важно, что верхняя часть будет пересекать скат крыши, для монтажа необходимо провести тщательные расчёты
Крыша – состоит из стропильной системы, обрешетки (внутренней и внешней), утеплителя и обшивки. То есть так же имеет вид пирога.
Типы стропильных систем
Расчёт конструкции важно производить учитывая:
- положение дома и его высоту – для уменьшения эффекта «паруса»;
- климат в регионе, особенно влияние ветров;
- используемые материалы – одной из ошибок, с которой сталкиваются владельцы, считается установка не просушенных деревянных элементов. В результате этого со временем конструкцию «ведёт» (из-за перепадов влажности), деформация приводит к разрушению узлов, а иногда и всей крыши.
Устройство крыши
№12. Проект «Аризона»
Проект предусматривает сооружение трехэтажного большого дома общей площадью 240 м2 – здесь будет где разгуляться большой компании. Первый этаж – это технические помещения и комнаты общего пользования. Большая гостиная объединена с кухонной зоной. Из кухни есть выход на застекленную веранду – это уютное место для отдыха, застолий и семейных обедов. В большой прихожей легко поместится вместительный шкаф, а если в него не влезут все необходимые вещи, их можно будет перенести в кладовую, которая также расположилась на первом этаже. Конечно же, присутствует санузел и техническое помещение, есть даже кабинет. Если он не нужен, то комнату можно переоборудовать в детскую, спальню или небольшой тренажерный зал.
На втором этаже четыре просторные спальни, кладовая и санузел, из общего холла есть выход в комнату отдыха, которая находится над верандой. Это помещение может служить просто для посиделок или стать оранжереей – вариантов масса. Третий этаж – это единое пространство площадью 58 м2. Здесь можно оборудовать бильярдную, игровую зону для детей, место для занятий спортом. Также можно выделить место для хранения вещей. Неплохо тут расположится домашний кинотеатр. Балкон на третьем этаже площадью почти 14 м2 можно использовать для пикников и завтраков на свежем воздухе. В жаркий летний день тут и позагорать можно. В доме очень много полезного пространства и главное хорошо продумать, как использовать его максимально выгодно и превратить дом в место отдыха и развлечений. Если во дворе организовать бассейн, то уезжать из такого особняка вообще не захочется.
Сколько установить окон
Чаще всего проектом предусматривается установка эркерного модуля на южной стороне дома. Это позволяет обеспечить максимальное освещение помещения естественным светом. Для южных регионов, где среднегодовая температура высокая делают окна на всю выступающую стену.
Окна в круглой пристройке расположены по всему периметруИсточник gbd.su
Для северных районов продумывают варианты установки окон в зависимости от ситуации. Это может быть одно окно в центре конструкции с глухими боковыми стенами, либо на каждой стене устанавливают отдельное окно. Высоту оконного проема выбирают по желанию. Она может быть от пола до потолка либо ставят обычные окна.
№6. Проект «Нэшвилл»
Очень интересный проект, который отлично подойдет для больших семей. Отдыхать компанией в таком доме будет достаточно комфортно, ведь в нем 4 спальни, просторная гостиная и прекрасная терраса, а общая площадь составляет 150 м2. Большую часть первого этажа занимает гостиная с камином. Тут легко разместится много гостей. Рядом с гостиной расположилась большая кухня-столовая, эти помещения визуально объединены – их разделяет частичная перегордка. Из гостиной есть выход на террасу, она хоть и небольшая, но обеденный стол тут поместится. Близость террасы к кухне обеспечит хозяйке максимальное удобство в подготовке обеда на свежем воздухе. Кроме того, первый этаж также включает санузел, бойлерную, небольшую кладовую и компактную спальню.
На втором этаже разместились две небольшие спальни и одна спальня чуть побольше с выходом на просторную террасу площадью 9,5 м2. Для удобства будущих хозяев на этаже также предусмотрена кладовая и санузел. По этому проекту можно построить уютный, симпатичный и очень комфортный дом, где с удовольствием можно будет как отдыхать, так и круглогодично жить.
Начало работ: расчёты, подготовка чертежей
Чертежи каркасных домов
До проектирования строения нужно пошагово определиться со следующими моментами:
Шаг 1. Назначение дома – например, для нежилой постройки возможно не потребуется утепление, стены будут тоньше.
Пример утепления стены в разрезе
Шаг 2. Отопление – его тип (отдельная котельная или запитанное от уже существующих коммуникаций), расход тепла из расчёта на жилую площадь (чем больше комнат, тем более дорогим будет их прогрев), устройство дымохода.
Планировка отопления дома
Шаг 3. Количество проживающих – от этого зависит число этажей и спален.
Планировка двух этажного дома
Шаг 4
Какие материалы будут использоваться – часто применяют изделия из древесины, так как они есть во всех регионах, но важно понимать, что длинные элементы (свыше 6 метров) приобрести не удастся. Например, балки для обвязки фундамента придётся стыковать
Это потребует соответствующего опыта.
Пример использования материалов из древесины
Шаг 5. Расположение коммуникаций в здании – наружное или внутреннее. В первом случае обслуживание трубопроводов и электропроводки облегчается, но портится внешний вид помещений. Во втором – при необходимости ремонта придётся разбирать обшивку.
Прокладка коммуникаций под домом
Шаг 6. Нахождение санузлов, кухни и прочих хозяйственных помещений – их стараются сгруппировать поблизости друг с другом – чтобы облегчить разводку труб.
Учитывайте также циркуляцию воздуха в помещении
Шаг 7. Планировка – самый трудный этап для будущих хозяев. От грамотного расположения помещений зависит комфорт, а произвести изменения после строительства будет сложно. Рекомендуется использовать компьютерное 3D-моделирование – это даст возможность наглядно убедиться в правильности решений.
Наглядный пример 3D моделирования
Шаг 8. Балконы и лоджии – делают, если строение (как минимум) двухэтажное. Элементы также следует заранее предусмотреть и рассчитать.
Балкон второго этажа
После этого следует определиться с размерами. Они зависят от величины участка и его качества. Если ландшафт имеет сильные перепады по высоте, это придётся заранее исправлять.
Пример: дом 6х6 с мансардой. Типовые проекты и чертежи
Планировка второго этажа 6х6
Одноэтажный дом 6х6 – одно из лучших решений для средней семьи из 2-3 человек. Такие проекты часто выбираются для возведения в частных садоводствах, дома пригодны для отдыха и сна в летние дни. Чертежи для одноэтажных домов 6х6 способен создать практически любой владелец участка.
Вариант планировки первого этажа 6х6
Главные плюсы:
- экономия стройматериалов;
- компактность;
- простота и высокая скорость возведения.
Один из вариантов (общий план):
Планировка первого этажа 6х6
- Первый этаж – кухня, ванная и туалет.
- Второй этаж – спальни.
- Фундамент – облегчённый из винтовых свай.
Планировку этажей можно выбрать в зависимости от назначения дома. Такие дома некоторые опытные строители создают даже в одиночку.
Дома 6х4
Проекты 6х4 также компактны, но для большой семьи не пригодны. Часто используются для постройки летних дач, охотничьих домиков или для хозяйственных нужд.
Главная черта – максимально быстрая возводимость, если выбран одноэтажный дом. Строения также мало весят, на устойчивых и стабильных почвах потребуют самого простого фундамента.
Проекты 6х8
План каркасного дома
В таких постройках комфортно будет уже 3-4 жильцам. Есть проекты двухэтажных и одноэтажных домов. В верхней части располагается мансарда или чердак, это не считается третьим этажом.
Планировка каркасного дома
Выбор планировок многообразен. На первом этаже можно предусмотреть гостиную, санузел, кухню и небольшое хозяйственное помещение. На втором – спальни и комнаты для гостей. В мансардном помещении – мастерскую, тренажёрный зал, или дополнительные комнаты.
Проект каркасных домов
Часто возникает вопрос – уж если проект так необходим, имеет ли смысл искать его бесплатные варианты или лучше приобрести документ за деньги? Будет ли содержать готовый бесплатный проект всё, что необходимо для строительства? Можно ли доверять его данным, будут ли надёжны полученные расчёты? В ожидании какого-либо подвоха или из-за обывательского недоверия рождается сомнение – можно ли пользоваться таким заманчивым предложением?
Фасад каркасника.
Мы предлагаем каркасные дома, проекты, фото бесплатно. При этом предоставляем за оплату услуги по строительству домов, а также помощь в закупке строительных материалов. Мы не зарабатываем на проектировании, и предлагаем вам сэкономить на заказе проекта и выбрать типовое решение из имеющихся в наличии проектных решений. Это позволит нам выполнить работу качественно, а вам – получить гарантированно надёжное жильё за оптимально небольшие деньги.
Типовое проектирование – хорошее решение для многих заказчиков. Однако для 10% возводимых домов оно не подходит. Скачать готовые проекты каркасных домов бесплатно не стоит тем, кто хочет построить уникальное архитектурное сооружение, использовать оригинальные нестандартные решения.
На заметку
Банк готовых проектов предоставляет настолько широкий выбор, что всё реже находится заказчиков, которые не могут найти в нём подходящий для индивидуального строительства вариант.
Особенности каркасных домов для проживания круглый год
Качественные проекты одноэтажных каркасных домов для круглогодичного проживания обязательно должны включать:
- материалы от проверенных производителей для максимального сохранения тепла в помещениях;
- организацию утепления с внутренней и наружной стороны здания.
![]()
Каркасники для круглогодичного проживания называют еще зимними каркасными домами. По стоимости строительства они превосходят типовые летние проекты (дачи и жилые дома в регионах с жарким климатом), и даже приближаются по смете к кирпичным и каменным постройкам.
![]()
Тем не менее, зимние каркасники обладают массой преимуществ:
- в то время, как каменный дом обогревается около суток, каркасник для круглогодичного проживания требует нескольких часов для решения такой задачи;
- стоимость в половину ниже, чем в случае с кирпичным аналогом;
- от 1 до 3 месяцев требует реализация проекта каркасного дома;
- легкий вес конструкции не предполагает сложного фундамента, основа собирается легко;
- несущая способность каркаса не теряется, если организовать эркер или мансарду.
По планировке одноэтажные каркасные дома могут быть самыми разнообразными.
![]()
Выбор зависит от финансовых возможностей, площади участков, состава семьи и других факторов.
Варианты интерьера
Выбор внутреннего оформления конструкции зависит от функционала помещения.
Видео описание
Пример оформления дома с эркером смотрите в видеоролике:
Выбираем мебель
В эркерной нише детской комнаты устраивают рабочую зону, где ребенок выполняет домашние задания, играет.
В гостиной устраивают зимний сад, место для чаепития, уединенных бесед. В таком эркерном выступе устанавливают небольшой столик с креслами, диван с большим количеством подушек.
В дополнительном пространстве устроена зона отдыхаИсточник yandex.ru
Кухонный эркер позволяет хозяйке отвлекаться от приготовления пищи, не выходя их помещения. В этом сегменте можно устроить столовую, визуально отделив ее от кухни.
Спальня с эркером выглядит особенно интимной.
Модно стало оборудовать в эркерном помещении ванну. Такой вариант проектируют на стене, расположенной во внутренней части двора. Это позволяет совместить релакс и гигиенические процедуры.
Нельзя загораживать выступ громоздкой мебелью – шкафами, гарнитурами. Они сделают помещение неуютным и темным.
Шторы
Шторы для эркера требуют особого внимания. Для варианта с круглым или полукруглым периметром заказывают специальные карнизы либо натягивают прочную проволоку. На стены с углами вешают карнизы на каждый ровный отрезок отдельно.
Шторы для эркерной пристройки подбирают в одной цветовой гамме с дизайном комнаты. Для кухни уместны легкие, функциональные занавески. Яркие кухонные шторы сделают помещение более оригинальным и запоминающимся.
В гостиной вешают плотные, портьеры благородных оттенков, ролеты нейтральны светлых оттенков.
Роллетные шторы на каждом окне пристройкиИсточник karkasblog.ru
В спальне уместны занавески пастельных тонов. Они могут быть прозрачными, но в таком случае на окна устанавливают другие элементы – ролеты, римские шторы, жалюзи.
Что следует учесть при строительстве
Возведение стен для эркерного выступа требует грамотной кладки кирпичей или блоков. В такой фасад должны хорошо вписываться окна
Особенно это важно для конструкций круглой и полукруглой формы. При том, что внешне эркер является украшением дома, проект двухэтажного дома с эркерной пристройкой должен учитывать, что его стены являются несущими
Расчет прочности для них делается так же, как и для остальных стен.
Специфичен монтаж крыши. Для эркерного выступа требуются дополнительные элементы – ендовы, кровельный материал, опорные балки. Выступающее положение эркера делает крышу уязвимой для порывов ветра. Для покрытия кровли эркера делается отдельный расчет углов наклона, рассчитывается запас прочности. Стыки с основной крышей обрабатываются герметиком.
Видео описание
Какие могут быть нюансы при монтаже крыши у дома с эркером смотрите в видео:
Эркерные конструкции – это оригинальное архитектурное решение, позволяющее украсить дом и расширить его полезную площадь. Существующие модели, рассчитаны на различные финансовые возможности, вкус, площадь участка, строительный материал. Но при желании выстроить дом с эркером двухэтажный или в один уровень, надо учитывать, что это неизбежно повлечет за собой усложнение проекта и увеличение конечной стоимости дома.
Подготавливаем и размечаем участок для строительства
До начала строительства домов из каркаса стоит подготовить площадку, на которой он будет возводиться. Сначала следует очистить территорию от росших на ней кустов и деревьев, а также убрать мусор, камни, траву. Если участок неровный, его рекомендовано разровнять. Для этого проводится срезание возвышенностей и подсыпание грунта в ямы.
До начала строительных работ необходимо определиться с проектом каркасного дома. Далее строитель размечает территорию под фундамент. Чтобы перенести данные с разработанного проекта в натуру, размечают внешние габариты дома. Для этого следует воспользоваться деревянными колышками, вбивая их в землю. Они же помогают отметке внутренних стен строения.
Каркасные дома – какой проект выбрать
Руководствуясь одними фото каркасных домов, можно распознать разве что жилую площадь, этажность и обшивку.

А ведь проектирование тематических сооружений требует обратить внимание на другие не менее важные вещи:
- Место под строительство – уровень грунтовых вод, отдаленность от инженерных коммуникаций, панорамный вид;
- Вид фундамента – легкий свайно-винтовой, столбчатый, ленточный-монолитный;
- Используемые стройматериалы – несущие элементы, крепежные элементы, теплоизоляторы.









Первый момент объясняет, насколько сложным будет проект. Ведь от уровня грунтовых вод, отдаленности коммуникаций и панорамного вида зависят выбор фундамента, затраты на подвод магистрали и разработка дома с одним-двумя этажами соответственно.

Фундамент и используемые стройматериалы уже больше отвечают за надежность будущей конструкции.


Одноэтажный или двухэтажный каркасный дом
Наибольшей популярностью у застройщиков загородных участков пользуются проекты одно – и двухэтажных зданий. Выбор зависит от размеров участка застройки, а также от желаемой хозяевами планировки помещений дома.
Особенности проектирования одноэтажных домов-каркасников
Проекты одноэтажных
каркасных домов получили широкую популярность не только среди владельцев
компактных земельных наделов, но и у собственников больших участков. Эргономичные,
надежные и просторные коттеджи смотрятся интересно и респектабельно. В числе
особенностей одноэтажного домостроения отмечают:
- Относительно не сложное строительство;
- Внушительный выбор вариантов размещения комнат;
- Доступную стоимость готовой постройки;
- Отсутствие дополнительных нагрузок на фундамент и требований к его типу, благодаря небольшому весу здания.
Площадь постройки определяется не только предпочтениями собственника, но прежде всего, размерами участка. Кого-то вполне удовлетворит дом размерами 6х6, а кто-то найдет коттедж 10х10 слишком маленьким.
Особенности проектирования двухэтажных домов-каркасников
Выстроив на участке двухэтажный каркасный дом, можно значительно сэкономить место без ущерба для метража жилой площади. Однако двух и более этажное строительство имеет ряд специфических нюансов и свои «подводные камни»:
- Необходимость возведения межэтажных перекрытий;
- Инженерные системы водоснабжения, канализации, электричества, отопления, вентиляции в домах, высотой более одного этажа, более сложно устроены из-за разветвлённой схемы расположения;
- Потребуется сооружение лесов, чтобы поднять стройматериалы на второй и последующий этажи;
- К прочности фундамента предъявляются повышенные требования;
Возможно, понадобится разработка дополнительных проектных решений по обустройству балконов, лестничных пролётов, узлов отопления, вентиляции, сброса сточных вод – всё это влияет в сторону увеличения на цену проекта двухэтажного каркасного дома.
Проекты одноэтажных каркасных домов 6 на 6
- Фундамент – свайно-винтовой;
- Общая площадь дома – 36 кв. метров;
- Первый этаж: терраса, зал-студия, совмещенная с кухней;
- Второй этаж: просторная спальня с выходом на балкон.
- Двускатная крыша, кровельное покрытие – металлочерепица.

Независимо от площади и планировки каркасные дома способны стать оптимальным решением при выборе комфортного загородного коттеджа для сезонного или круглогодичного проживания.
При выборе индивидуального или типового проекта необходимо руководствоваться не только его стоимостью, но и такими критериями, как общая площадь земельного участка, его ландшафт, количество людей, которые будут проживать в здании.
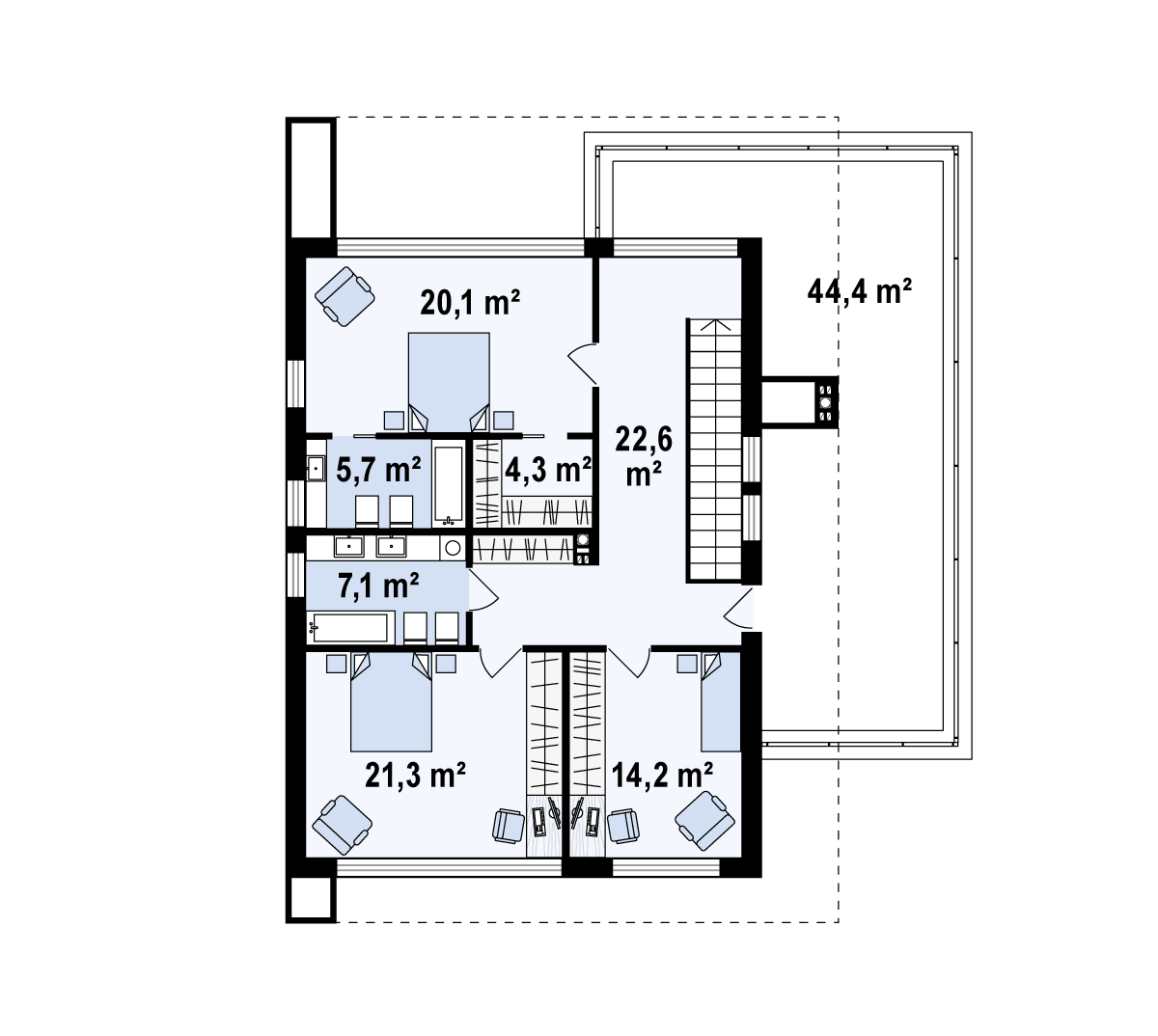
№5. Проект «Хай-тек»
Отличный вариант дома для тех, кто любит все современное, продуманное и комфортное. Главная особенность дома – наличие гаража и подсобных помещений. Кроме этого, на первом этаже предусмотрено помещение для организации спортивной зоны. Из импровизированного спортзала есть выход на улицу, а если организовать во дворе бассейн, то после тренировок сразу можно купаться. Также на первом этаже расположилась просторная гостиная с остеклением в пол. Дополнит интерьер гостиной зоны камин. Кухня-столовая расположена рядом с гостиной и отделена от нее только лишь визуальным зонированием – никаких перегородок. Для удобства жильцов на первом этаже расположен санузел, а все жилые комнаты вынесены на второй этаж.

Проектом предусмотрено расположение на втором этаже трех спальных комнат. В одной из них есть отдельная кладовка и свой санузел. Также на втором этаже располагается еще один санузел для тех, кто будет отдыхать в двух других спальнях. С коридора второго этажа есть выход на просторную остекленную зону, которую можно превратить в уютную комнату отдыха с шикарным видом. Площадь дома 236 м2.


Размещение на участке
Выбор места на участке, которое будет отведено под застройку дома – это первый и очень важный этап всего строительного процесса. Только определившись с расположением здания можно заказывать архитектурный проект.
При выборе места застройки нужно учитывать несколько определяющих факторов:
- ориентация по сторонам света;
- допустимое расстояние от дома до забора и соседских построек;
- форма и рельефность участка;
- климатические особенности региона;
- предпочтения хозяев относительно обустройства участка.
Мансардный коттедж размером 8 на 10 лучше поместить в глубину участка. При этом следует учитывать нормативные расстояния до соседний объектов. При таком расположении перед домом можно будет разместить все основные зоны на участке. Если он имеет стандартную форму, то рядом с домом останется немного места для технической зоны или огорода.
Техническая зона в углу участкаИсточник pinterest.ie
Согласно СНиП от дома до забора соседей должно быть не менее 3 метров. Это расстояние за коттеджем можно использовать для размещения небольшого палисадника. Некоторые домовладельцы используют его для обустройства небольшого заднего двора.
















































