Возможная планировка
Правильная планировка бани площадью 3х6 очень важна для комфортного использования данного помещения. Помимо этого, следует учитывать и расположение строения на территории дачного участка. Категорически запрещается пристраивать баню к жилому строению, так как того требуют правила пожарной безопасности. Более того, между домом и банькой должен быть выдержан промежуток равный 10 метрам, а между баней и иными строениями – промежуток, равный 5 метрам.
На самом деле, возможно не так и много вариантов планировки постройки 6х3. Главным условием является, чтобы мойка и парилка располагались отдельно от комнаты отдыха, а также, чтобы выход из мойки шел напрямую в комнату отдыха. Кроме того, есть смысл планировать баню так, чтобы печь имела возможность обогревать все три помещения. Наиболее распространенный чертеж прорисовывается таким образом, чтобы из комнаты отдыха можно было попасть в моечную, а из нее уже в парилку.
В некоторых случаях составленный план подразумевает, что в том же здании располагается подсобное помещение с отдельным входом. Именно в этом пространстве могут храниться запасы дров, а также инструменты, необходимые для работы на участке. Хорошая планировка получается, если изначально всю прямоугольную постройку разделить на 3 сектора, ширина каждого из которых составит 2 метра. Справа, таким образом, расположится парная, в центре – душевая, а слева – комната отдыха. Одна третья душевой отдается для тамбура.
Надо сказать, что в небольшой моечной, конечно же, не разместить бассейн, но вот бочка или купель, а также сама душевая система впишутся довольно органично. В парной принято размещать одну или две скамьи, поставленные буквой «Г». По желанию снаружи пристраивается летняя веранда, навес или терраса. В теплое время года открытое пространство послужит дополнительной зоной отдыха, а в зимнее время защитит строение от попадания избыточного снега. Мансарда, обустроенная на втором этаже, может выполнять роль гостевой комнаты или дополнительной зоны отдыха.
В комнате отдыха можно поставить дополнительную перегородку, чтобы переодевающийся человек не мешал уже отдыхающим «соседям». Есть смысл также организовать туалет, совместив его с комнатой отдыха или помывочной.
Составление проектной документации
Создание проекта бани состоит из:
- Обрисовки эскиза и чертежа.
- Составления графика работ.
- Расчета сметы.
При помощи чертежа можно:
- сделать правильную ориентировку по сторонам света;
- спланировать двери и окна;
- грамотно провести проводку.
Рекомендуется строить баню не как пристройку, а как отдельное от других строение.
Чертеж бани из брусаИсточник bepeza.ru
Необходимо при составлении проекта учитывать климатические условия и местоположение объекта:
- Окна желательно поставить с запада и юга.
- Двери поставить со стороны дома.
- Если есть возможность, лучше строить баню на какой-либо возвышенности. Благодаря этому ливневые воды будут обходить её.
Получение разрешения в административных органах
Если построить баню, не утверждая её в соответствующих структурах, по любым жалобам соседей её могут снести.
Расчет стоимости баниИсточник et.aviarydecor.com
Поэтому необходимо, чтобы проект был одобрен. Для этого он должен включать в себя:
- Поэтажный план, даже если баня состоит из одного этажа. План должен включать в себя подробные чертежи, разрезы и экспликацию.
- Приблизительную смету на материалы.
- Тип фундамента с чертежами.
- Письменное согласие всех ближайших соседей на возведение бани.
Получение разрешения – обязательная процедура.
Размеры других помещений и бани

Размер постройки зависит от бюджета и наличия места на участке Чтобы определить размеры бани, создать чертежи помещений, правильно обустроить коммуникации, в первую очередь руководствуются санитарно-гигиеническими нормами, а затем – вопросами комфорта.
- Проект парилки или сауны в бане – самый важный. Если площадь здания позволяет, организуют и другие помещения.
- Площадь моечной вычисляют из соотношения – 1 м² на человека. В крайних случаях допускается установка душа прямо в парилке. 2 человека легко поместятся в помывочной размером в 1,4–1,7 м², а для большой компании из 4 человек потребуется 5 м².
- Если площадь не ограничивается, моечная комбинируется с бассейном. Тогда ее размеры могут доходить до 5*5 м и больше.
- Если предбанник представляет собой только раздевалку, для 1–2 пользователей хватит и 1,8–2 м². Если пользователей больше, даже в компактном строении его площадь растет до 6 м². Здесь появляются скамьи для сидения и столик. Дрова тоже можно оставлять здесь в количестве, необходимом для 1 топки.
В крупных комплексах предбанник и комната отдыха – 2 разных помещения. В зависимости от количества гостей площадь последней колеблется от 8 до 15 м².
Проект бани с бассейном: преимущества
Как уже говорилось, невероятно полезно после посещения парной искупаться в прохладной воде. Те, кто имеет участок рядом с рекой или озером, могут окунуться в водоеме. Если же поблизости нет ни одного водоема, то бассейн станет хорошим альтернативным вариантом.
Купание в бассейне после посещения парной полезно и приятно. Вы испытаете наслаждение, окунувшись в прохладную воду, расслабитесь и наполнитесь хорошим настроением.
Воздействие контрастных температур помогает снять усталость, омолаживает организм, усиливает иммунитет. Регулярное закаливание помогает увеличить сопротивляемость организма к различным вредным бактериям и вирусам.
Баня с бассейном хороша и тем, что в ней веселее. Если вы собираетесь большой компанией, то бассейн сделает ваш отдых более насыщенным!
Фундамент
Резервуар при наполнении водой создает колоссальную нагрузку на основание. Саму баню, как правило, возводят из легких материалов – дерева, пеноблоков. Часто сооружение выполняют по каркасной технологии с заполнением стен пористым утеплителем.

Полноценный бассейн с размерами 3х4 метра и глубиной 1,4 м дает нагрузку на грунт не менее 17 тонн. Чем больше высота столба жидкости, тем значительнее давление на почву. К этому нужно добавить собственный вес рукотворного водоема, сантехнического оборудования, отделочных материалов.
Стены
Постоянная повышенная влажность агрессивно воздействует на материал стен и потолков. С квадратного метра поверхности бассейна каждый час испаряется 150-250 г воды. Конструкции и отделку, находящиеся в таких условиях, защищают от действия влаги гидроизоляцией, обрабатывают от гниения особенно тщательно.

Традиционно для постройки и отделки бань используется дерево. Большой биостойкостью обладают кедр и лиственница. Высокое содержание смол в древесине этих пород – природный антисептик и консервант.
Отопление и нагрев воды
Отопление помещения бассейна, как правило, обеспечивается от общей банной или домовой системы, где температуру теплоносителя повышают газовые, электрические или твердотопливные котлы. На стены монтируют отопительные водяные коллекторы или радиаторы.

Эффективно используется в банях система “теплый пол”. Она отапливает помещение, к тому же по нагретой поверхности приятно ходить босиком.
Вода в бассейне может подогреваться общим или автономным источником тепла. Используют теплообменники, электрические нагреватели, солнечные коллекторы.
Канализация
Для отвода воды подойдет только центральная канализация. Стандартная выгребная яма на даче не потянет такой объем воды. Канализация с сопутствующими комплектующими (сливная труба, клапаны) рассчитывается заранее.

А при условии отсутствия в воде химреактивов ее можно будет применять для полива растений на усадьбе.
Правильная вентиляция, осушение воздуха
Из-за постоянного наличия воды в помещении будет высокая влажность. Поэтому подойдет не каждый вид отделки. Если это деревянные элементы, то лучше брать породы с повышенной влагостойкостью ‒ кедр, лиственницу. Хорошо пропитать материал антисептиками.
Рекомендуемый уровень влажности должен быть в пределах 50‒60%.
Чтобы достичь его, применяют:
- Специальное покрытие резервуара. Подойдет обычная плотная полиэтиленовая пленка. На время, когда бассейн не используется, его просто накрывают пленкой.
- Принудительную вентиляцию. Эффективна весной и летом, а зимой повлечет снижение температуры в помещение, повысит затраты на отопление.
- Осушители воздуха ‒ лучший вариант. Они отлично снижают влажность в комнате, нагревая при этом воздух. В комплексе с правильно обустроенной вентиляцией дадут максимальный эффект. В продаже есть бюджетные модели.
Как правильно рассчитать размер парилки в бане
Планировка сауны и парилки начинается с определения количества пользователей. В этом случае расчеты предельно просты. На 1 человека приходится 1–1,5 м². С учетом печки парная будет иметь площадь для одного – 1,5 м², для двух – 3 м², для трех – 5 м².
Учитывать нужно еще и удобство пользователей. Париться можно сидя, с вытянутыми ногами, полулежа, лежа. Площадь и выстота потолка для этого потребуется разная.
- Сидя с согнутыми ногами можно париться и на площади в 1 м², при высоте помещения в 1,5 м. В зависимости от ширины полока здесь можно сидеть с прямой спиной, откинувшись, если сиденье составляет менее 60 см, и с согнутыми ногами, если ширина полока увеличивается до 90 см.
- Намного удобнее в парной лежать, но в этом случае площадь нужна побольше. Если на полоке лежат с согнутыми ногами, длина его должны быть не менее 1,5 м, габариты парной будут 1,6х1,5 м.
- Если обустраивают шезлонг, длина сиденья возрастает до 1,6–1,7 м.
- В полный рост лежат на полоке длиной 1,85 м и шириной 0,6 м. Даже для 1 человека площадь сауны возрастает до 2 м².
- Высоту помещения определяет рост самого высокого пользователя. Она редко превышает 1,9 м.
Рассчитывая оптимальную площадь парилки, учитывают, что полки могут быть двухъярусными, а пользователи могут париться в разных позах. Поэтому считается, что оптимальные габариты парилки на 3–4 человек составляют 5–6 м².
Маркетинг план
В районе, где будет располагаться русская баня, проживает порядка 20 000 человек. Это спальный район города с большим числом многоэтажных домов и новостроек. Предполагается, что жители данного района и будут основными клиентами нашего комплекса. Однако, ввиду транспортной доступности комплекса, не исключается посещение клиентами из других районов города.
В качестве методов рекламы нашей бани планируется:
- Расклейка объявлений, раздача листовок, флаеров, информирующих об открытие комплекса;
- Реклама в сети интернет, регистрация на досках объявлений, тематических ресурсах, форумах, контекстная реклама яндекс-директ.
Что же касается конкурентов, то в нашем районе функционирует 2 подобных комплекса со схожим перечнем услуг. В ходе исследования было выявлено, что конкуренты работают по высоким ценам, не соответствующих качеству предоставляемых услуг. Тем не менее, поток клиентов в данные банные комплексы достаточно высокий.
Проведем расчет предполагаемого ежемесячного дохода русской бани.
Выручка бани будет отличаться в зависимости от того, какой это день — самый высокий доход ожидается в пятницу и субботу. Предполагается, что загрузка бани в эти дни будет составлять не менее 80%. То есть из 12 часов работы бани, арендовано будет не менее 10 часов.
Таким образом, выручка за эти дни составит: 600 руб. * 10 ч * 2 = 12 000 рублей. В остальные 5 дней, загрузка бани будет не более 40%, то есть выкуплено будет 5 часов: 600 руб. * 5 ч. * 5 = 15 000 рублей.
Итого доход в неделю от аренды бани составит 27 000 рублей. Кроме этого, часть выручки принесут дополнительные услуги – примерно 20% от общей выручки или 7000 рублей неделю. Итого общий доход в неделю составит 34 000 рублей, в месяц – 136 000 рублей.
Материалы для строительства
Суперпривлекательные загородные дома строят из кирпича, дерева, бетона, камня. На выбор влияют конструктивные особенности здания и возможности в плане дизайна.
Сказочно красивые дома из кирпича
Кирпич – распространенный строительный вариант. Его преимущества в долговечности (средний срок эксплуатации около 150 лет), легкой сочетаемости с традиционным деревом, натуральным или искусственным камнем, бетоном. Внутри создается благоприятный микроклимат за счет высокой воздухопроницаемости кирпичных стен. Материал не горит, что улучшает пожарную безопасность постройки.
Кирпич хорошо поддается механической обработке, так что подходит для реализации сложных архитектурных конструкций и элементов декора (колонн, выступающего орнамента на фасаде).
Как видно на фото, потрясающие по красоте кирпичные дома строят в самых разных стилях: это может быть шикарный классический особняк, строгий средневековый замок, аккуратный минималистичный коттедж. Выложенные из кирпича стены облицовывают декоративным покрытием или оставляют без отделки.









Красивые деревянные дома
Коттеджи из натуральной древесины имеют невероятно презентабельный внешний вид. Этот материал легко гармонирует с природным окружением, поэтому часто используется при строительстве загородного жилья. Причем, не только небольшого по площади, но и двух-, трехэтажных зданий с террасами и балконами.
В работу идут дуб, лиственница, сосна, кедр. Эти породы имеют привлекательную фактуру, цвет, выгодные эксплуатационные свойства: экологичность, долговечность, теплопроводность, влагостойкость. Внешние стены и внутрикомнатные перегородки возводят из профилированного бруса, оцилиндрованных бревен.
Деревянные коттеджи, в которых древесина использована в интерьерной отделке, очень уютны для проживания. Теплая фактура покрытия делает внутреннее пространство оригинальным.









Коттеджи из бетона
Очень красивыми дома получаются из бетонных плит и монолитных железобетонных конструкций
Материал применяют в проектах современной архитектуры – минимализм, хай-тек, индустриальный стиль – где важно акцентировать внимание на простых формах и линиях, а от фасадного декора можно отказаться. Серые бетонные стены можно оставить без отделки, тогда усилится эффект мощного, основательного сооружения. Придать ему визуальную легкость можно панорамным остеклением, как на фото
Придать ему визуальную легкость можно панорамным остеклением, как на фото
Придать ему визуальную легкость можно панорамным остеклением, как на фото.





Проекты бани с бассейном под одной крышей
Независимо от конструктивных особенностей бассейна, его можно разместить далеко не в каждой бане. В готовую сауну из бревна нельзя просто так поставить большое гидротехническое сооружение. Поэтому его необходимо предусмотреть и запроектировать еще на уровне чертежей, чтобы впоследствии не переплачивать за дополнительные работы по адаптации помещения. Среди главных мероприятий по подготовке деревянной бани на дровах к строительству внутренней купальни гидроизоляция потолка, поверхностей стен и электрической проводки.
В бассейне количество кубометров воды зависит от размеров чаши, а канализация не всегда рассчитана на такие сливные объемы. Обычный слив из душевой под фундамент здания также не годится для этой задачи.


Площадь постройки под баню с бассейном может быть разной в зависимости от желаний и финансовой обеспеченности владельцев. Это может быть небольшой домик с парилкой и маленьким разборным типом купели. А бывает и целый комплекс с различными помещениями внутри, такими как бильярдная, комната отдыха и места, предназначенные для приготовления барбекю или шашлыков.




Особенности планировки одно- и двухэтажных бань
Все описанные помещения могут спокойно расположиться на первом этаже. Но в таком случае либо сама баня займет значительную площадь на участке, либо внутренние помещения не будут такими просторными, как мечталось
Если хочется большей компактности бани на участке, но при этом без ущерба для размеров помещений, рекомендуется обратить внимание на проекты двухэтажных бань. Традиционно все «банные» помещения (душевая, парилка, бассейн) расположены на первом этаже, а второй в целом можно назвать зоной отдыха
Здесь разместится терраса с мангалом и барбекю, несколько спальных комнат, тренажерный зал, бильярдная, мини-кинозал и так далее
Важно предусмотреть внутреннюю лестницу на второй этаж. Ведь подниматься после парной по холоду не так уж приятно
Если вы планируете построить баню для личного пользования, необходимо тщательно продумать все детали. Ведь именно от них будет зависеть то, насколько комфортно вы сможете принимать банные процедуры. Как показывает практика, баня — это не только парилка с вениками, но еще и место для встречи с друзьями, отдыха и так далее. Чтобы в дальнейшем никакие детали не вызывали у вас дискомфорт, планировка бани должна быть идеальна. Лучше всего, чтобы она состояла не только из обязательных, но и дополнительных помещений. Эта опция зависит от множества факторов: размера и загруженности земельного участка, частоты использования бани, примерное количество человек, которые смогут одновременно париться и так далее.
Если вы планируете часто помещать баню большой компанией, есть смысл строить ее более просторной, с несколькими комнатами отдыха и бассейном. Если же банные процедуры — нечто обыденное и вы не проводите здесь более часа, вполне можно обойтись тремя стандартными помещениями: предбанником, раздевалкой-душевой и парилкой.
Хаммам
Интерьер хаммама в современном стиле
Хаммам отличается своей большой площадью и наличием многих парных. Конечно же, как и аналоги, она включает предбанник, который служит раздевалкой. Температура воздуха здесь составляет 28-30 °С. Далее размещен зал для различных процедур. Показатели в нем составляют 40-50 °С. Хаммам обустроен полками. Еще одно из отличий – использование мрамора, именно из него изготовлены лежаки. Как правило, этот зал имеет круглую форму.
Цветная мозаика в дизайне турецкой парной с бассейном
Бирюзовый цвет хаммама с эффектной неоновой подсветкой
После главного зала расположена парилка. Ее обогрев проводится при помощи труб, которые расположены под лежаками и за стенами. Что же касается наличия пара, то для этого ранее устанавливались кипящие котлы, но сегодня с этой целью применяют специальное электрическое оборудование – парообразователи.
Хаммам своими руками
Уютный интерьер турецкой бани
Позолота в оформлении интерьера
При составлении проекта для самостоятельного возведения хаммама вы можете исключить или добавить что-то другое. Важную роль в хаммаме играет создание внутренней атмосферы. Для отделки лучше всего подойдет мрамор. Также вы можете разместить в разных частях бани восточные аксессуары.
С какими неудобствами можно столкнуться
Парную необходимо размещать в самом дальнем углу постройки относительно жилых помещений. Между парной и стенкой дома лучше всего разместить моечную или комнату отдыха
Важно придерживаться действующих СНиПов, иначе проблем с регистрацией не избежать. Стену, смежную с баней дополнительно тепло- и гидроизолируют. Проектирование пристройки требует хорошей вентиляции, гидроизоляции (наружной и внутренней), термоизоляции, наличия централизованной или автономной канализационной системы, обработки антисептиками и огнеупорными пропитками
Но даже при соблюдении всех норм проблемы могут возникнуть
Проектирование пристройки требует хорошей вентиляции, гидроизоляции (наружной и внутренней), термоизоляции, наличия централизованной или автономной канализационной системы, обработки антисептиками и огнеупорными пропитками. Но даже при соблюдении всех норм проблемы могут возникнуть.
Страховщики неохотно берутся за оформление страховки на дома с повышенной опасностью. При несоблюдении технологии постройки, коммунальщики также могут отказаться подключать газ или свет, как и органы ответственные за регистрацию строения.
При возведении всего комплекса из дерева нужно позаботиться обо всех степенях защиты, иначе в помещении будет сырость и плесень. Если и дом, и баня имеют большие габариты, потребуется электро или газовый котел высокой мощности, а значит, расходы на отопление существенно увеличатся. Придется повозиться и канализацией, нагрузка на нее возрастет.
Для отвода газов потребуется две трубы, соответственно и два проема в кровле. Моечную нужно оборудовать плиткой
Особенное внимание уделяют полам, обеспечивая полный слив, иначе повышенная влажность распространится по всему дому
При использовании каменки на дровах необходимо организовать хорошую тягу. При неправильной конструкции дым будет проникать в жилые помещения, и со временем, на потолках образуется сажевый налет.
Баня с террасой, барбекю, советы специалистов, заключение

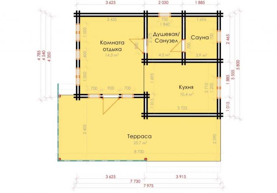
Чертёж бани 65 м. кв
Баня с террасой, барбекю — прекрасный оздоровительный комплекс на своём участке. Любимое место отдыха, где можно попариться, потом подышать свежим воздухом, устроить посиделки с друзьями, особенно после трудовой недели, работы в саду, огороде.
Прежде чем приступать к разработке проекта бани с террасой, определяют место для постройки, в соответствии с размерами участка. Возможно, при строительстве дома уже был отведён участок «под баньку». Исходя из размеров отведённой площади, выбирают архитектурный проект.
Если вы хотите более просторное и функциональное помещения с гостевой комнатой, присмотритесь к дизайн-проектам бани с террасой и мансардным этажом. Продумайте детали расположения комнат, обустройства. Нарисуйте схематично план будущего строения. За основу берут типовые проекты с баней, террасой, барбекю.
Строительные компании предлагают индивидуальный проект бани с террасой разной площади. Помогут возвести, обустроить баню с террасой.

Оздоровительный банный комплекс в усадьбе
Оцените возможности. Строительство можно проводить поэтапно. К примеру, осенью заложить фундамент, чтобы он отстоялся. Проложить основные коммуникации. Весной, летом возвести стены, крышу. А на следующий год перейти к отделке. Террасу пристроить позже. Хорошо, когда рядом с баней ещё можно установить бассейн, искусственный пруд. Хорошо, когда дом расположен на берегу природного водоёма.
Желательно, чтобы баня из бруса, бревён простояла сезон, чтобы фундамент, стены дали усадку.
Постройка бани с террасой на приусадебном участке — заключительный аккорд благоустройства территории. Посещение бани с хорошей парилкой, просторной террасой для отдыха восстановит здоровье. Это место, где можно провести хорошо время в кругу семьи, друзей.
БАНЯ С ВЕРАНДОЙ НАВЕСОМ ТЕРРАСОЙ ЧТО ВЫБРАТЬ
Лучшие проекты бани с террасой, комнатой отдыха и зоной барбекю | (40+ Фото & Видео)

Строительство и обустройство летней кухни на даче своими руками: проекты, дизайн, устройство, с мангалом и барбекю (60+ Фото & Видео) +Отзывы
